


335 959 ₽/м²
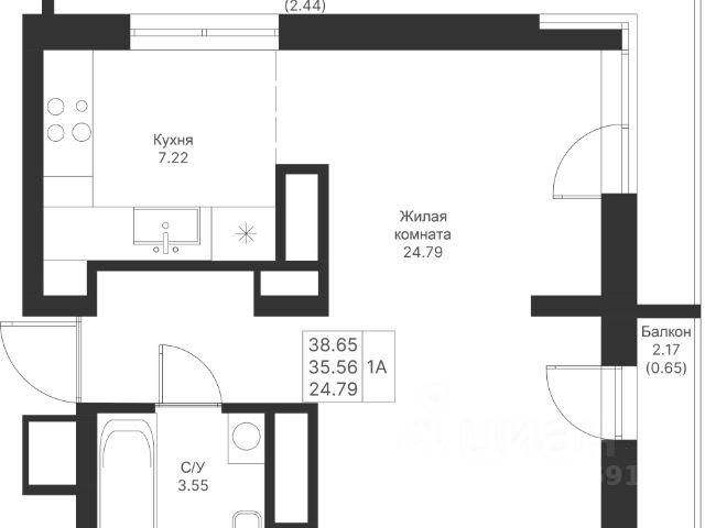
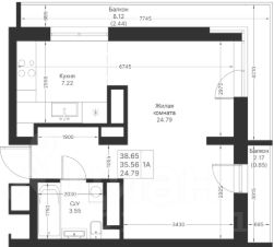
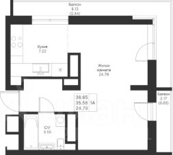
Q на Кулагина Жилой комплекс от компании "Унистрой" расположен в Приволжском районе Казани, на улице Кулагина, в активно застраиваемой и развивающейся части города. "Q на Кулагина" включает дома переменной высотности 9-20 этажей, фасады с подсветкой, дворы-парки с сенсорными садами, холлы и подземный паркинг с лифтом. Предлагаются квартиры с различными вариантами планировок. Жилой кластер Q это жизнь в перспективном районе города, при этом в тихом уютном месте у воды. Комплексный проект, где начинается новая история места. Локация Проект расположен в Приволжском районе на улице Кулагина. Рядом набережная озера Нижний Кабан, которая берёт начало от театра Камала, c пешеходными маршрутами, каскадом водных растений, велодорожками и лодочной станцией. Из объектов инфраструктуры несколько школ, детских садов, спортивный комплекс "Бустан", центр гребных видов спорта. В нескольких шагах благоустроенная набережная вдоль Монастырской протоки и озеро Средний Кабан у жилого комплекса "Аквамарин". На первых этажах домов откроются офисы, кофейни, спортивные студии, детские развивающие центры, клиники и многое другое. Архитектура Комплекс состоит из 3 домов квартальной застройки. Между собой дома объединяют прогулочные зоны. Объёмность архитектуре добавляет переменная высотность 9-20 этажей. Природные светлые и тёмные тона в отделке экстерьера проекта, общественных пространств создают уют и визуальный комфорт. Фасады из крупноформатных панелей с подсветкой формируют облик современной городской застройки. Пространства Дворы жилого комплекса это приватные зоны с игровыми площадками из природных материалов, спортивными зонами, местами для отдыха и работы. Есть прогулочные маршруты, беседки и релакс-парки. Интерьеры Дворы и входы в подъезды выполнены без пандусов и ступеней. Входные группы оформлены в современном стиле с природными оттенками. Холлы выполнены по авторскому дизайн-проекту и включают домофоны в тёплых зонах, бесшумные скоростные лифты, места ожидания, паркинг для колясок. Квартиры В "Q на Кулагина" предлагаются квартиры с террасами, евроварианты с просторными кухнями-гостиными, мастер-спальнями с ванными и гардеробными, тёплыми лоджиями и эркерами. На верхних этажах террасы позволяют любоваться видом на Волгу и Гребной канал. Отделка В квартирах выполняется предчистовая отделка с использованием качественных материалов: металлические двери, тепло- и шумоизоляция, энергоэффективные стеклопакеты, скрытая разводка коммуникаций и радиаторы с терморегуляцией. Персонификация В жилом комплексе устанавливаются двери с электронными замками, зайти можно классическим способом с ключами или по отпечатку пальца. В дома подается питьевая вода, прошедшая фильтрацию и ионизацию. Автоматизирован учет потребления ресурсов. Паркинг "Q на Кулагина" включает подземный паркинг. Территории дворов, входные группы, будут оборудованы видеонаблюдением и охраной. Предусмотрены многоуровневый паркинг, гостевые места и зарядные станции для электромобилей. Республика Та
























































































































