


312 847 ₽/м²
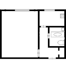
Продается 1-комн. квартира на 6-м этаже в квартале бизнес-класса GloraX Урицкого. Общая площадь лота составляет 30,59 кв. м, из которых 10,63 кв. м отведено под жилую и 14,07 кв. м под кухонную зону. Номер квартиры - 42 GloraX Урицкого это идеальное сочетание динамики мегаполиса и камерности района, где каждое утро начинается легко, а каждый вечер наполнен ощущением дома Преимущества квартиры: евро-двухкомнатная квартира; вид на улицу. Преимущества, которые изменят вашу жизнь: • Собственная инфраструктура: Всё для комфорта и досуга, не выходя за территорию проекта • Безопасность 24/7: Закрытая территория, видеонаблюдение, система "Умный дом" • Безбарьерная среда: Забота о каждом жителе, независимо от возраста • Футуристичные лобби: Эстетика и комфорт с первых шагов в вашем доме. • Колясочные в каждой секции: Больше пространства в ваших квартирах • Квартиры в отделке White Box: Готовый холст для реализации дизайнерских идей. • Благоустройство в стиле лесопарка: эко-пространство, где природа становится частью повседневной жизни. GloraX Урицкого это проект бизнес-класса для тех, кто живёт в ритме большого города, но ждёт безмятежности у себя дома. Здесь всё важное происходит рядом с вами: работа, встречи, спортивные и культурные активности, прогулки, образование и обучение. Здесь вы ощутите, что вы наконец-то дома — в доме, которого давно ждали. Стоимость действительна при 100% оплате или стандартной ипотеке. Купить 1-комнатную квартиру в Казани.


















































































































































