


136 399 ₽/м²
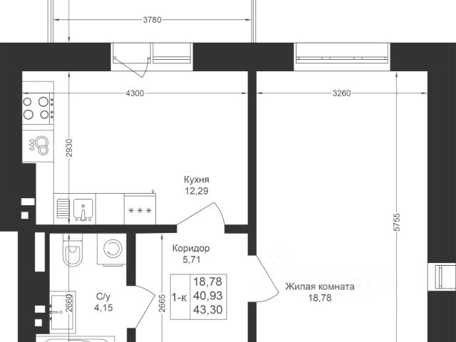
Продаётся 1-комнатная квартира в сданном доме (Дом 3 Корпус 2), срок сдачи: I-кв. 2024, общей площадью 43.72 кв.м., на 4 этаже. "Волшебный сад" - это экологически чистый жилой комплекс с огромной зеленой территорией! В жилом комплексе: Высота домов не превышает пяти этажей. Магазины, школы и садик в шаговой доступности. В каждой квартире индивидуальное отопление, удобная планировка. Дом сдан, заезжай и живи - имеются варианты с чистовой отделкой! Инфраструктура, как в городе! Магазины - от продуктовых до строительных, образовательные учреждения, заправки и кафе, бани, автомастерская. Экология, как на даче! Река Мёша, поля и леса прямо у вашего дома. В 10-ти минутах от Казани! Ипотека с господдержкой на все квартиры от 8%. Ипотека 6% без удорожания. Позвоните нам прямо сейчас, и мы обязательно подберем для Вас жилье! Продам 1-комнатную квартиру с отделкой в Лаишевском районе республики Татарстан.

































































































































































