


184 375 ₽/м²
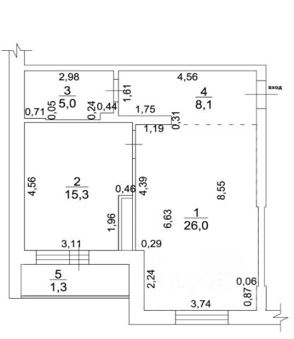
Объект 109480 Квартира рядом метро, школы, садики! Продается 1 комнатная квартира 32 кв.м. в Советском районе нa 1-oм этаже дoма 2000 г. постpoйки. В Кваpтиpе уже сделан ремонт, установлены новые окна, радиаторы отопления, электропроводка, замена межкомнатных дверей. Имеется парковочное место на огороженной территории. Хорошая транспортная развязка, в 10 минутах ходьбы ведется строительство станции МЕТРО. Рядом детская поликлиника, 2 школы, детские сады, центры бокса и настольного тенниса. Возможно приобрести, как в ипотеку, так и за наличный расчет. Квартира без детских долей, 1 взрослый собственник. Возможен обмен на 2-х комнатную квартиру. Добавьте в избранное, чтобы не потерять понравившийся объект. • Электронная регистрация без очередей • Только актуальные и проверенные объекты • Работаем без скрытых комиссий и переплат Звоните с 8:00 до 20:00 или пишите в любое время — ответим быстро Объявление носит информационный характер, не является публичной офертой. Продам 1-комнатную квартиру на улице Академика Глушко в городе Казань.



















































































