Первичная продажа



Ипотека от 4,6%!
ещё 5 акций
С отделкой
Онлайн-бронирование
сдача ГК: 4 кв. 2026 года
Проспект Победы
11 минут на транспорте
11 345 200 ₽
226 000 ₽/м²
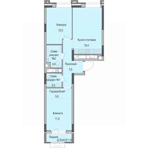
Продаётся 2-комнатная квартира в строящемся доме (Дом 1), срок сдачи: IV-кв. 2026, общей площадью 50.2 кв.м., на 2 этаже. Новый жилой комплекс "Фермаполис" от застройщика "КОМОССТРОЙ" расположен по адресу Республика Татарстан, Казань, Фермское шоссе.



































































































































































