


167 800 ₽/м²
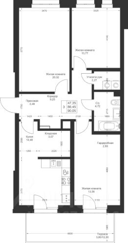
Продаётся 3-комн. квартира площадью 78,4 кв.м на 13 этаже 17 этажного дома (Корпус 3, Секция 1) проекта ПИК Матюшино парк. Светлый просторный подъезд на уровне земли, функциональная планировка, большие окна, предчистовая отделка. "Матюшино парк" - проект ПИК в Приволжском районе Казани. Квартал отличается удобным расположением. До центра города можно добраться всего за 20 минут на автомобиле или на электричке от станции "Южный парк". Проект находится в экологически чистом окружении. В пешей доступности лесопарк - Девликеевский лес, который идеально подходит для неспешных прогулок. Жители квартала смогут доехать до берега Волги, где можно активно провести время и насладиться живописными видами. Квартал состоит из 20 корпусов с современной архитектурой. В "Матюшино парке" будет всё необходимое для комфортной жизни. На первых этажах разместятся магазины, кафе и полезные сервисы, а во дворе появится зелёный парк и общественное пространство для отдыха и занятий спортом. В проекте запланированы современные детские сады, школа и поликлиника. Артикул 1018210





































































































































































