


179 000 ₽/м²
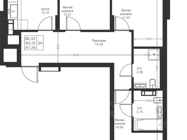
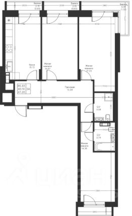
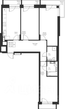
Продается 3-комнатная квартира 196 площадью 75,21 кв.м на 9 этаже проекта "Светлая долина" строительной компании "Ак Барс Дом". Купить квартиру можно в ипотеку со ставкой от 3,2% или воспользоваться услугой trade-in. "Светлая долина" — уютный жилой комплекс Казани с полноценной инфраструктурой мегаполиса и атмосферой природы, с детскими садами, школой, магазинами в шаговой доступности. Находится в Советском районе по Мамадышскому тракту, за 20 мин. можно доехать до центра города. В близкой доступности расположены также ТРЦ "МЕГА", агропарк, зельгрос. Мы продумали благоустройство до мелочей: экологичные дворы с детскими площадками, спортивные зоны с резиновым покрытием и велодорожки, озеленение и яблоневый сад. Комплекс расположен вблизи реки, здесь приятно гулять по парку с набережной на 10 га, устраивать пикники и заниматься спортом, играть на детских площадках. Чтобы вы чувствовали себя в безопасности, по периметру установлено видеонаблюдение, тамбур оборудован видеодомофоном. Заходя в подъезд, вы попадаете в уютное пространство с местами отдыха и колясочными. Входы расположены на уровне земли, что удобно для мам с колясками и пожилых людей. В квартирах высокие потолки, окна со светоотражающим напылением, сдаются с предчистовой отделкой или готовым ремонтом в светлом либо темном варианте на ваш выбор. Обслуживание дома возьмут на себя специалисты управляющей компании "Всегда рядом". Они помогут обеспечить вам комфортное проживание. Дом там, где мы. Купить 3-комнатную квартиру с балконом рядом с метро Проспект Победы.




























































































































