


225 889 ₽/м²
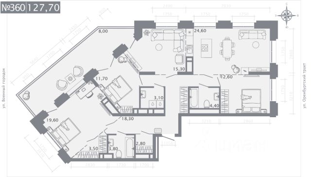
Прямая продажа от застройщика! Жилой Комплекс бизнес-класса. Продаётся 4-к квартира номер 348 общей площадью 96.2 кв.м. на 6-м этаже 14 этажного здания. Отделка Whitebox. Цена с учётом скидки. Особенности квартиры: - Мастер-зона с санузлом и гардеробной. Всё для вашего комфорта и удобства, включая личный санузел и гардероб. - Просторная спальня, в которой можно разместить большую кровать. - Угловая планировка - больше пространства для ваших идей. - Постирочная - организуйте пространство для стирки и сушки вещей. - Евроформат - просторное и удобное жилье с отличной планировкой. - Просторная гардеробная - место для вашего личного пространства. Квартира с предчистовой отделкой (White box). Вам не придется заниматься черновыми и трудоёмкими работы, а чистовую отделку и дизайн - сделайте на свой вкус. Информация о комплексе: "Фриссон" - клубный дом бизнес-класса в самом сердце Казани, на улице Даурской. Лейтмотивом проекта стала музыка - её сила, гармония и способность возвышать нас над повседневностью. Подобно нотам, рождающим бесконечное множество мелодий, квартиры в "Фриссоне" создают пространство для творчества, вдохновения и личного ритма жизни. Архитектура клубного дома словно симфония: переменная высота корпусов, выразительные фасады и динамика линий создают ощущение лёгкости и движения. Свет свободно проникает во внутренние дворы и квартиры, наполняя пространство теплом и гармонией. Здесь каждый день звучит по-своему - в унисон с вашим настроением. Транспортная доступность: - 5 мин. на машине до Метро Аметьево - 8 мин. на машине до ТЦ "KazanMall" - 3 мин. пешком до школы - 1 мин. пешком до Детского сада "Фриссон" - 3 мин. до поликлиники Внутренняя инфраструктура: Гармония уюта, ритма и комфорта. Для маленьких жителей комплекса предусмотрены детские площадки с элементами музыкальной тематики, где можно играть, исследовать мир звуков и развивать творческое мышление. На территории "Фриссона" разместится двухэтажный детский сад на 80 мест - современное и безопасное пространство, где дети всегда рядом с родителями. Закрытая территория, концепция "двор без машин" и круглосуточное видеонаблюдение обеспечивают спокойствие и безопасность жителей. В каждом подъезде предусмотрены колясочные, а во дворе - велопарковки, чтобы коляски, велосипеды и самокаты всегда были под рукой. На первых этажах корпусов расположатся кафе и магазины, делающие жизнь максимально удобной. Здесь всё продумано для того, чтобы дом стал местом вдохновения, а двор - пространством, наполненным радостью и энергией жизни. 4-комнатная квартира в новостройке рядом с метро Аметьево.
















































































