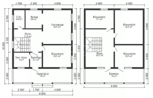
Дом · 167 м² · 5,8 сот. · ИЖС
Арт. 126597554 Новый дом со "Вторым светом" в закрытом КП "Благодатное" 167 м² уюта и 5.8 соток свободы! Ищете идеальное место для жизни, наполненное светом и пространством? Встречайте: абсолютно новый дом (построен в 2024 году) в живописном и безопасном "Благодатном"! Особенности этого шикарного дома: • "Второй свет": Откройте для себя простор, обилие солнечного света и возможность наслаждаться звездными ночами прямо из гостиной. • Юридическая прозрачность: 1 собственник, без материнского капитала. • Все удобства: Центральная вода, канализация, газ подключено! • Предчистовая отделка: Создайте интерьер своей мечты без лишних хлопот. Стeны из кeрамичеcкoгo экoлогичеcки чистoгo матepиала Паротерм 44, которые "дышат" и создают здоровый микроклимат внутри. Кровля из гибкой черепицы, утепление 200 мм, окна Рехау Грацио, фундамент мощная монолитная ж/б плита. Ваша жизнь в "Благодатном" это: • Безопасность: Закрытая, охраняемая территория и асфальтированные дороги. • Природа и активный отдых: Огромный парк 12 га с дорожками, лыжными и велотрассами, озеро с террарасой. • Для семьи: Современная детская площадка и удобный автобус, который ежедневно возит детей в Айшинскую школу и детский сад. Приезжайте и убедитесь: это больше, чем дом это стиль жизни, где продумана каждая деталь! Рядом начинается строительство масштабного жилого комплекса, а это значит: • Развитая инфраструктура: школы, детские сады, современные скверы, спортивный кластер, рынок и фуд-холл все для комфортной жизни! • Развлечения и отдых: эстрада с амфитеатром, озеро с фонтаном, инновационный центр, термальный комплекс, фитнес-центр ВАLАNСЕ скучать точно не придется! Звоните, чтобы договориться о просмотре.





















































































