


222 942 ₽/м²
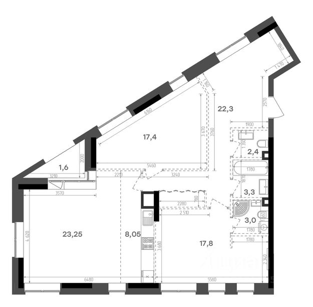
Вы можете приобрести эту квартиру в ипотеку со ставкой от 6% (семейная ипотека). Новоселье уже в этом году! Подробнее - звоните! Продается 2-к квартира 154 в образцовом доме "Авторы на Годовикова" в центре Авиастроительного района. Квартира на 11 этаже площадью 68.76 м², кухней-гостиной и высотой потолков 2.7 м. Квартира сдается в предчистовой отделке со стяжкой полов, предоставляя полную свободу для ваших предпочтений в дизайне. Срок сдачи дома — 1-й квартал 2027 года. Возможно приобретение со скидкой 5% при полной оплате, в рассрочку с первым взносом 30%, а также оформление стандартной ипотеки по интересным условиям. Образцовый дом "Авторы на Годовикова" расположен в тихой зоне, удаленной от активной дороги — на второй линии от улицы Максимова. Соседство с невысокими частными домами открывает превосходный вид из квартиры. Для прогулок на свежем воздухе в шаговой доступности Караваевский парк и парк "Крылья Советов". В соответствии с современными стандартами комфорт-класса "Авторы" предлагают особые решения для вашего комфорта: • Современная архитектура. • Закрытый двор без машин. • Дизайнерские холлы с зонами ожидания и детской комнатой. • Подземный паркинг. • Зона для хвостатых. Двор в концепции траектории полета создает единую линию движения. На территории дома есть многофункциональная зона для йоги и настольных игр, детская зона для комфортных прогулок юных жителей, многофункциональная спортивная площадка со скалолазанием и площадка для выгула собак. Обильное озеленение из 25 видов растений и несколько игровых зон для юных жителей разных возратов: для детей до 3-х лет — песочница, горка и качели; для детей от 4 до 14 лет — большой игровой комплекс, включающий горки, качели, карусели, переговорные трубы и мягкую геопластику, в которой прячутся тоннели. Компания "Авторы" — девелопер на рынке высококлассной недвижимости Казани. Как самостоятельный застройщик компания работает с 2022 года, а в начале 2024 года успешно сдали свой первый проект ЖК "Дом у озера", где 96% квартир были приняты дольщиками с первого раза и без критичных замечаний. Компания входит в ТОП-5 застройщиков РТ по потребительским качествам ЕРЗ. Сейчас компания ведет строительство проектов на ул. Большая, ул. Петербургская, ул. Годовикова и ул. Астрономическая

















































































