


255 000 ₽/м²
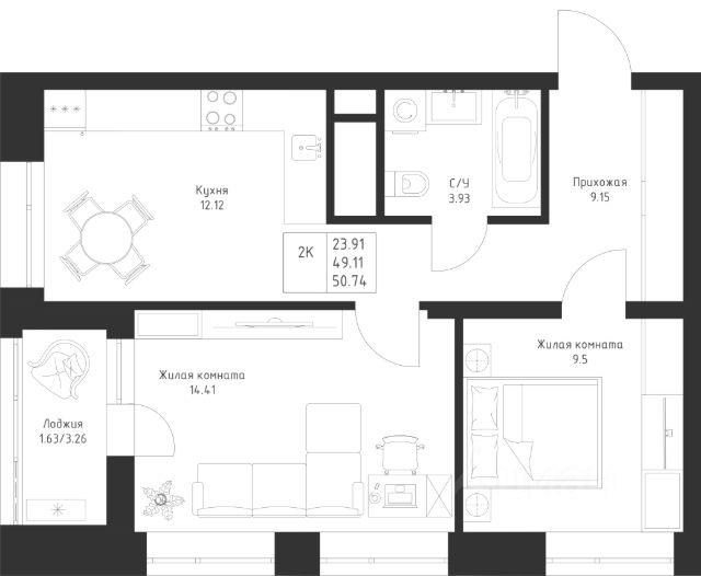
Продается 3 Евро-комнатная квартира 89 площадью 77,27 кв.м на 7 этаже в строящемся проекта "Мой Ритм" компании "Ак Барс Дом". МОЙ РИТМ — не просто жилой комплекс, это новый стандарт динамичной жизни Казани. Точка притяжения сердца города. Проект признан лучшим в России в номинации "Масштабная застройка свободных территорий" во всероссийском конкурсе "ТОП ЖК 2025" от ЕРЗ РФ. Современный жилой комплекс на пр. Победы рядом с Вознесенским трактом, торговым центром Мега и станцией метро на территории. ПРЕИМУЩЕСТВА: школы, детские сады на территории ЖК; кафе и магазины, салоны красоты, спортивные залы, аптеки; метро станция Тулпар на территории ЖК; Горкинско-Ометьевский парк рядом; рядом торговые центры: "Мега", "Южный", "Агропарк", "Максидом"; закрытый двор, повышенная безопасность; территория благоустроена: экологичные детские площадки, спортивные зоны с резиновым покрытием, всесезонное озеленение; игровой парк Озеро дракона на площади 1 га с зонами активности и отдыха; просторный подъезд с колясочной, вход на уровне земли; эффектное гранд-лобби с консьерж-сервисом; двухуровневый подземный паркинг с кладовыми и велобоксами. УДОБНАЯ ПЛАНИРОВКА: Комфортная 3-комнатная квартира с евро-гостиной для большой семьи, где можно наслаждаться общением с близкими. В квартире предусмотрена лоджия чтобы вы могли устроить дополнительное место для отдыха. Три отдельные комнаты позволят предусмотреть личное пространство для всех домочадцев. Для особенного удобства хозяев мастер-спальня с собственным санузлом и гардеробной. Спальни расположены по разные стороны, что позволяет разделить квартиру на взрослую и детскую зоны. Прекрасное решение для семьи 3 санузла и гардеробная, чтобы вам было удобно хранить свои вещи. В квартире предусмотрена лоджия, на которой можно организовать уютное место для отдыха. ПРИОБРЕСТИ КВАРТИРУ МОЖНО: • наличным и безналичным расчётом по 100% оплате и рассрочке; • с использованием маткапитала; • с использованием жилищных сертификатов; • в ипотеку; • онлайн покупка. ПОДБОР КВАРТИРЫ: Подбор квартиры, полное юридическое сопровождение сделки — БЕСПЛАТНО. Наши специалисты помогут вам в решении вопроса приобретения недвижимости с момента консультации до передачи ключа от квартиры. МОЙ РИТМ это не просто жилой комплекс повышенной комфортности, это образ жизни, продуманный до мелочей. ЗВОНИТЕ ПРЯМО СЕЙЧАС - наши консультанты подробно расскажут об акциях, вы получите максимально выгодные предложения по покупке жилья, одни из самых низких ставок на ипотеку, полное бесплатное сопровождение сделки.




































































































































































