Мы используем куки-файлы. Соглашение об использовании
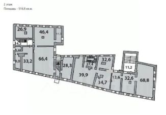
Площадь961,9 м²
Этажность2
Отчёт о привлекательности объектаУзнайте, насколько помещение и район подходят для вашего бизнеса
Что входит в отчёт
  • Охват населения
  • Пешеходный трафик
  • Автомобильный трафик
  • Средний бюджет семьи по району
  • Арендные ставки рядом
  • Точки притяжения
  • Конкуренты в радиусе 1 км
  • Рекомендации по выбору места для бизнеса
Характеристики: - 1 линия - Отдельная входная группа - Своя парковка - Доступ 24/7 - ХВС - Автономное отопление - Предчистовой ремонт - Кабинетная планировка - Отдельно стоящее здание - Без лифта - С окнами - Инфраструктура: Кафе/столовые, Магазины Дополнительная информация: Здание в центре города. Полная реконструкция. ЖБ перекрытия. Кабинетная нарезка. Своя парковка. Стоимость указана без учёта НДС АРР2 По всем вопросам можете обращаться к представителю собственника: Геннадий (217)
lock

Войдите или зарегистрируйтесь
для просмотра информации

Просматривайте условия сделки и всю информацию об объекте
Сохраняйте фильтры в поиске и не вводите заново
Доступ к избранному с любого устройства
Неограниченное добавление в избранное
Позвоните автору
Вам ответят на все вопросы
Остались вопросы по объявлению?
Позвоните владельцу объявления и уточните необходимую информацию.
  • Инфраструктура
  • Похожие рядом
Помощь надёжных риелторов
Риелтор партнёр Циан поможет купить или продать любую недвижимость
Агентство недвижимости
Суперагент
1 442 850 ₽/мес.
19 150 $/мес.
16 332 /мес.
Цена за метр
18 000 ₽ в год
Налог
УСН
Комиссия
нет
Коммунальные платежи
не включены
Эксплуатационные расходы
не включены
Агентство недвижимости
Суперагент
На Циан
7 лет
Объектов в работе
более 1000