Мы используем куки-файлы. Соглашение об использовании
Помещение свободного назначения, 540 м²

Сдается помещение свободного назначения, 540 м²

Площадь540 м²
Этаж1 из 1
Отчёт о привлекательности объектаУзнайте, насколько помещение и район подходят для вашего бизнеса
Что входит в отчёт
  • Охват населения
  • Пешеходный трафик
  • Автомобильный трафик
  • Средний бюджет семьи по району
  • Арендные ставки рядом
  • Точки притяжения
  • Конкуренты в радиусе 1 км
  • Рекомендации по выбору места для бизнеса
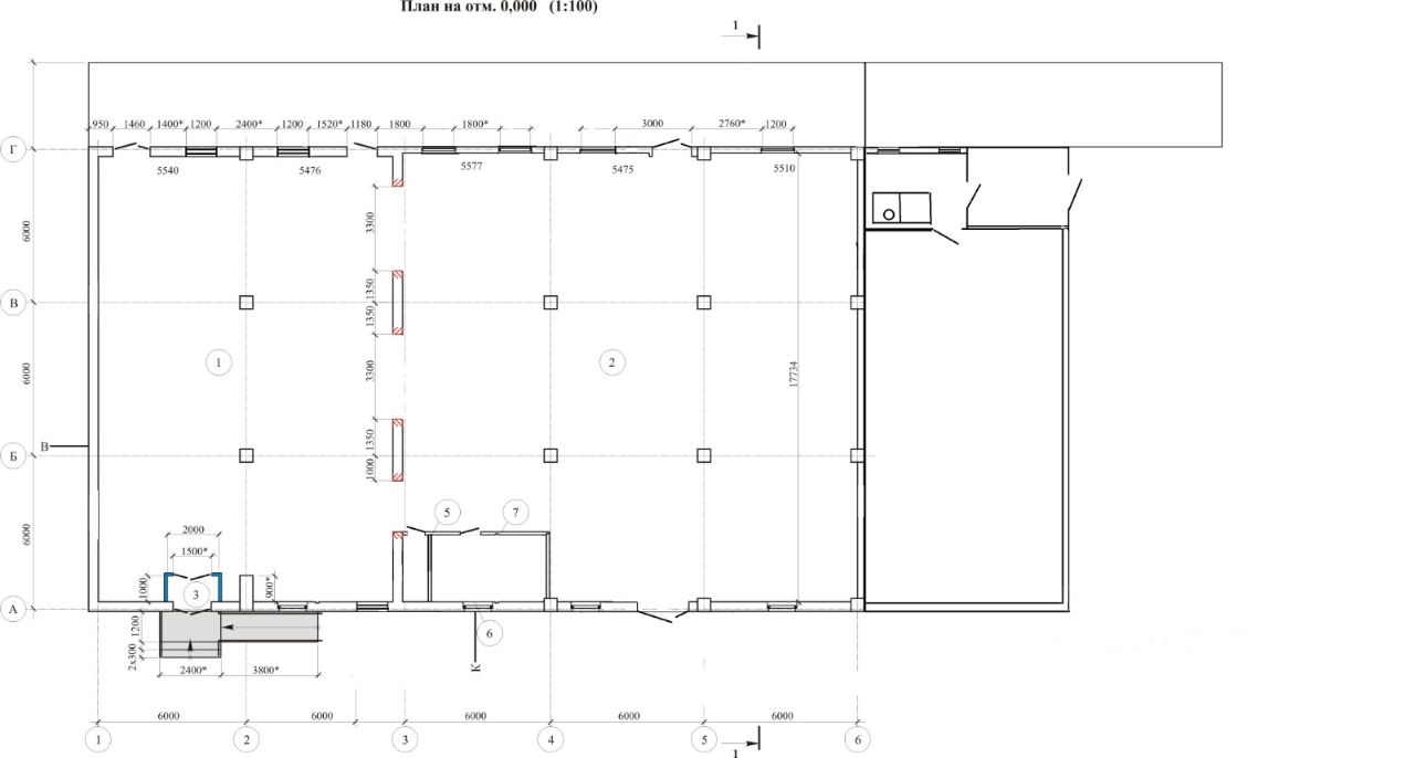
Отдельно стоящее здание площадью 540 кв.м. расположено на первой линии оживленной улицы по адресу: г.Бугульма, ул.Анвара Ягофарова, д.28/1, есть возможность деления на два зала площадью 324 и 216 кв.м. Обеспечено мощностью 42 кВт, автономным отоплением, водой, канализацией. Обеспечен отличный подъезд грузового, легкового и ЖД транспорта, парковка на 80 машин.
lock

Войдите или зарегистрируйтесь
для просмотра информации

Просматривайте условия сделки и всю информацию об объекте
Сохраняйте фильтры в поиске и не вводите заново
Доступ к избранному с любого устройства
Неограниченное добавление в избранное
Позвоните автору
Вам ответят на все вопросы
Остались вопросы по объявлению?
Позвоните владельцу объявления и уточните необходимую информацию.
  • Инфраструктура
  • Похожие рядом
  • Общая площадь540 м²
Естественная вентиляция
Автономное отопление
Помощь надёжных риелторов
Риелтор партнёр Циан поможет купить или продать любую недвижимость
Автор объявления
ID 11115402
  • 10 лет 3 месяца на Циане
  • 378 000 ₽/мес.

    Прямая аренда (от года), минимальный срок аренды 11 месяцев, доступны арендные каникулы, обеспечительный платёж 380000 ₽, предоплата за 1 месяц

    5 169 $/мес.
    4 438 /мес.
    Цена за метр
    8 400 ₽ в год
    Налог
    УСН
    Комиссия
    нет
    Коммунальные платежи
    не включены
    Эксплуатационные расходы
    не включены
    Автор объявления
    ID 11115402