Мы используем куки-файлы. Соглашение об использовании
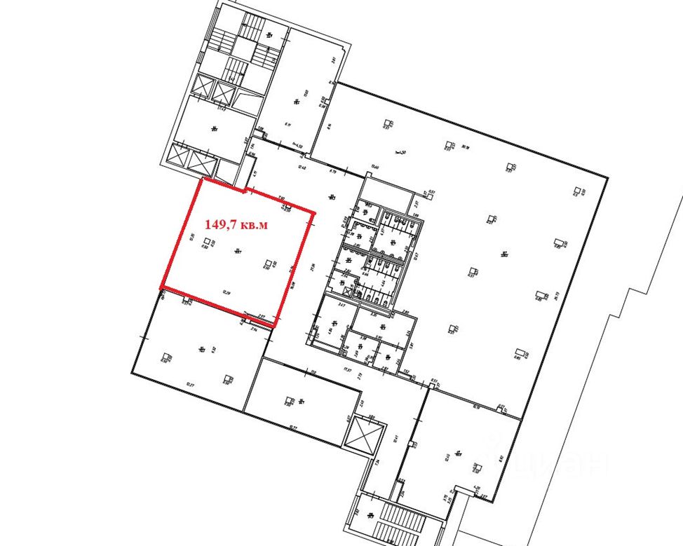
Помещение свободного назначения, 149,7 м²
Обновлено: 14 фев, 23:05
Объявление снято с публикации
Аукцион

Сдается помещение свободного назначения, 149,7 м²

Площадь149,7 м²
ПомещениеСвободно
Объявление снято с публикации, поищите ещё что-нибудь
АукционОбъект реализуется посредством электронных торгов. Конечную информацию об оплате, дополнительных платежах и условия заключения договора смотрите в документах извещения к лоту, на сайте электронной торговой площадки.
lock

Войдите или зарегистрируйтесь
для просмотра информации

Просматривайте условия сделки и всю информацию об объекте
Сохраняйте фильтры в поиске и не вводите заново
Доступ к избранному с любого устройства
Неограниченное добавление в избранное
Начальная цена, аукцион
324 920 ₽/мес.
4 030 $/мес.
3 477 /мес.
Цена за метр
26 046 ₽ в год
Налог
НДС включен: 58 592 ₽
Комиссия
нет
Коммунальные платежи
не включены
Эксплуатационные расходы
не включены
Управляющая компанияID 128914650