Мы используем куки-файлы. Соглашение об использовании
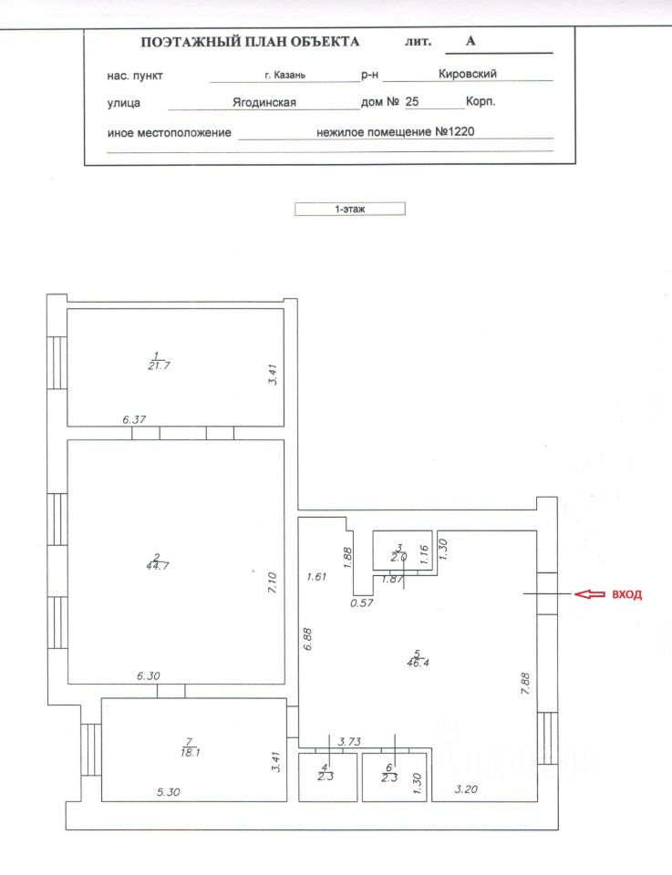
Помещение свободного назначения, 138 м²
Площадь138 м²
Этаж1 из 16
Отчёт о привлекательности объектаУзнайте, насколько помещение и район подходят для вашего бизнеса
Что входит в отчёт
  • Охват населения
  • Пешеходный трафик
  • Автомобильный трафик
  • Средний бюджет семьи по району
  • Арендные ставки рядом
  • Точки притяжения
  • Конкуренты в радиусе 1 км
  • Рекомендации по выбору места для бизнеса
Сдаю помещение свободного назначения по адресу г. Казань, ул. Ягодинская, 25 Улицы рядом: Чистопольская, Сибгата Хакима, Фатыха Амирхана, Вахитова, Фрунзе Ключевые преимущества: • Помещение расположено на оживленной улице, с хорошим автомобильным трафиком • Здание находится близко с остановкой общественного транспорта • Всегда есть свободные места на парковке • Удобные подъездные пути • Хорошая планировка • Хороший ремонт • Высокие потолки • 2 санузла • Отдельная душевая комната • 6 камер наблюдения (2 снаружи) Помещение на 1 этаже с отдельным входом, прекрасно подойдет под частный детский сад, медицинское учреждение, офис и др. Ставка 870 руб/кв.м + КУ АРЕНДА ОТ СОБСТВЕННИКА! БЕЗ КОМИССИИ!
lock

Войдите или зарегистрируйтесь
для просмотра информации

Просматривайте условия сделки и всю информацию об объекте
Сохраняйте фильтры в поиске и не вводите заново
Доступ к избранному с любого устройства
Неограниченное добавление в избранное
Позвоните автору
Вам ответят на все вопросы
Остались вопросы по объявлению?
Позвоните владельцу объявления и уточните необходимую информацию.
  • Инфраструктура
  • Похожие рядом
  • Общая площадь138 м²
Естественная вентиляция
Центральное отопление
Помощь надёжных риелторов
Риелтор партнёр Циан поможет купить или продать любую недвижимость
СобственникID 93184632
  • Предоставил паспорт
120 000 ₽/мес.

Прямая аренда (от года), минимальный срок аренды 11 месяцев, обеспечительный платёж 120000 ₽, предоплата за 1 месяц

1 608 $/мес.
1 365 /мес.
Цена за метр
10 435 ₽ в год
Налог
УСН
Комиссия
нет
Коммунальные платежи
не включены
Эксплуатационные расходы
не включены
СобственникID 93184632
  • Предоставил паспорт