Мы используем куки-файлы. Соглашение об использовании
Площадь1 200 м²
Этаж1 из 2
ПомещениеСвободно
Отчёт о привлекательности объектаУзнайте, насколько помещение и район подходят для вашего бизнеса
Что входит в отчёт
  • Охват населения
  • Пешеходный трафик
  • Автомобильный трафик
  • Средний бюджет семьи по району
  • Арендные ставки рядом
  • Точки притяжения
  • Конкуренты в радиусе 1 км
  • Рекомендации по выбору места для бизнеса
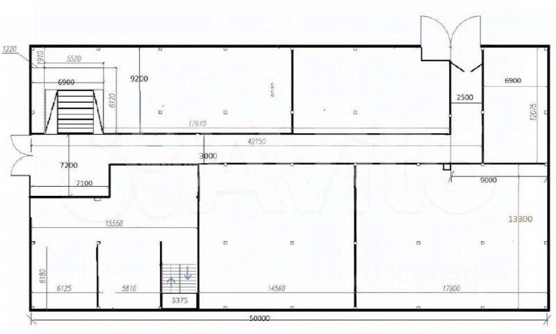
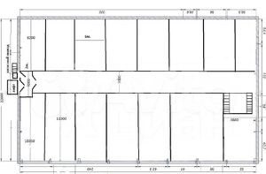
Характеристики: - 2 линия - Общая входная группа - Своя парковка - Есть возможность разместить вывеску - Погрузка/разгрузка: Запасной вход, Главный вход - Доступ по общему графику - ХВС/ГВС - Общий санузел - Центральное отопление - Вентиляция отсутствует - Максимальная мощность 50 кВт - Чистовой ремонт - Торговый/офисный центр - Имеется запасной выход - Без лифта - Без окон - Возможность перепланировки - Коммунальные услуги оплачиваются отдельно Дополнительная информация: Торговый комплекс общей площадью 2400 кв.м в сердце Советского района рядом с ул. Родина. Помещения свободного назначения от 70 кв.м. со своей мокрой точкой. Строительная готовность 90%. Рядом новый ЖК, кафе, автосервисы, магазины. 2х этажное здание с собственной парковкой на огороженной территории. Грузовой лифт на второй этаж. Высота потолков на 1-ом этаже 5,3 м, 2-ой этаж - 3,3 м. Договор аренды только по форме собственника сроком на 11 месяцев с автоматической пролонгацией. АРР0 По всем вопросам можете обращаться к представителю собственника: Илья (726)
lock

Войдите или зарегистрируйтесь
для просмотра информации

Просматривайте условия сделки и всю информацию об объекте
Сохраняйте фильтры в поиске и не вводите заново
Доступ к избранному с любого устройства
Неограниченное добавление в избранное
Позвоните автору
Вам ответят на все вопросы
Остались вопросы по объявлению?
Позвоните владельцу объявления и уточните необходимую информацию.
  • Инфраструктура
  • Похожие рядом
  • Общая площадь1 200 м²
Помощь надёжных риелторов
Риелтор партнёр Циан поможет купить или продать любую недвижимость
Агентство недвижимости
Суперагент
1 198 800 ₽/мес.
15 722 $/мес.
13 449 /мес.
Цена за метр
11 988 ₽ в год
Налог
УСН
Комиссия
нет
Коммунальные платежи
не включены
Эксплуатационные расходы
не включены
Агентство недвижимости
Суперагент
На Циан
7 лет
Объектов в работе
более 1000