Мы используем куки-файлы. Соглашение об использовании
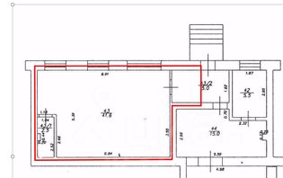
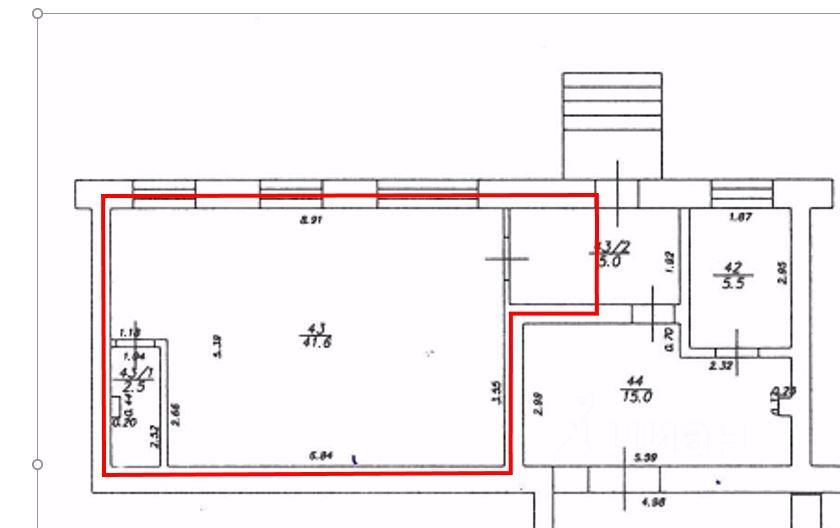
Помещение свободного назначения, от 8,5 до 46,6 м²

Сдается помещение свободного назначения, 8,5 – 46,6 м²

Площади8,5 – 46,6 м²
Этаж1 из 5
ПомещениеСвободно
Отчёт о привлекательности объектаУзнайте, насколько помещение и район подходят для вашего бизнеса
Что входит в отчёт
  • Охват населения
  • Пешеходный трафик
  • Автомобильный трафик
  • Средний бюджет семьи по району
  • Арендные ставки рядом
  • Точки притяжения
  • Конкуренты в радиусе 1 км
  • Рекомендации по выбору места для бизнеса
Доступно 2 площади
8,5 м²
1 этаж
17 000 ₽/мес.
24 000 ₽/м² в год
46,6 м²
1 этаж
37 280 ₽/мес.
9 600 ₽/м² в год
Сдается помещение свободного назначения на входе в маг Пятерочка 8,5 кв.м. отремонтировано. Также есть помещение 46 кв.м. (со входом со двора). Отдельный вход. Есть с/узел. В хорошем состоянии.
lock

Войдите или зарегистрируйтесь
для просмотра информации

Просматривайте условия сделки и всю информацию об объекте
Сохраняйте фильтры в поиске и не вводите заново
Доступ к избранному с любого устройства
Неограниченное добавление в избранное
Позвоните автору
Вам ответят на все вопросы
Остались вопросы по объявлению?
Позвоните владельцу объявления и уточните необходимую информацию.
  • Инфраструктура
  • Похожие рядом
  • Общая площадь46,6 м²
Естественная вентиляция
Центральное отопление
Гидрантная система пожаротушения
Помощь надёжных риелторов
Риелтор партнёр Циан поможет купить или продать любую недвижимость
Отдел арендыID 16234889
  • Документы проверены
  • 7 лет 11 месяцев на Циане
  • 1 объявление
  • 17 000 – 37 280 ₽/мес.

    Субаренда (от года), минимальный срок аренды 11 месяцев, обеспечительный платёж 38000 ₽, предоплата за 1 месяц

    от 94 до 513 $/мес.
    от 85 до 466 €/мес.
    Цена за метр
    от 9 600 ₽ в год
    Налог
    НДС включен: 6 722 ₽
    Комиссия
    нет
    Коммунальные платежи
    не включены
    Эксплуатационные расходы
    включены
    Отдел арендыID 16234889
    Документы проверены