Мы используем куки-файлы. Соглашение об использовании
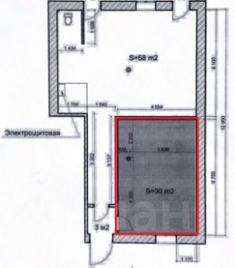
Помещение свободного назначения, 30 м²

Сдается помещение свободного назначения, 30 м²

Площадь30 м²
Этаж1 из 2
Отчёт о привлекательности объектаУзнайте, насколько помещение и район подходят для вашего бизнеса
Что входит в отчёт
  • Охват населения
  • Пешеходный трафик
  • Автомобильный трафик
  • Средний бюджет семьи по району
  • Арендные ставки рядом
  • Точки притяжения
  • Конкуренты в радиусе 1 км
  • Рекомендации по выбору места для бизнеса
Арт. 132969440 Казань, ул. Профсоюзная Вашему вниманию предлагается на одной из главной и молодёжной улицы города помещение свободного назначения! Преимущества объекта: доступ 24/7 1 этаж, 1 линия место под вывеску Ремонт : Новый, пол - керамогранит, стены - покрашены. окно тамбур круглосуточный пеший и автомобильный трафик Соседи : 1.Снизу : Цветочный магазин, бар24 часа, 2.Сверху : Студия лазерной эпиляции, офисные помещения Ограничения по бизнесу: Запрещена торговля розничная напитками брендовыми, алкогольная продукция. Есть ВИДЕООБЗОР, пишите звоните! Успейте забрать место
lock

Войдите или зарегистрируйтесь
для просмотра информации

Просматривайте условия сделки и всю информацию об объекте
Сохраняйте фильтры в поиске и не вводите заново
Доступ к избранному с любого устройства
Неограниченное добавление в избранное
Позвоните автору
Вам ответят на все вопросы
Остались вопросы по объявлению?
Позвоните владельцу объявления и уточните необходимую информацию.
  • Инфраструктура
  • Похожие рядом
  • Общая площадь30 м²
Центральное отопление
Помощь надёжных риелторов
Риелтор партнёр Циан поможет купить или продать любую недвижимость
90 000 ₽/мес.

Прямая аренда (от года)

1 203 $/мес.
1 015 /мес.
Цена за метр
36 000 ₽ в год
Налог
НДС не включен
Комиссия
нет
Коммунальные платежи
не включены
Эксплуатационные расходы
не включены
Агентство недвижимости
Документы проверены
На Циан
10 лет
Объектов в работе
274