Мы используем куки-файлы. Соглашение об использовании
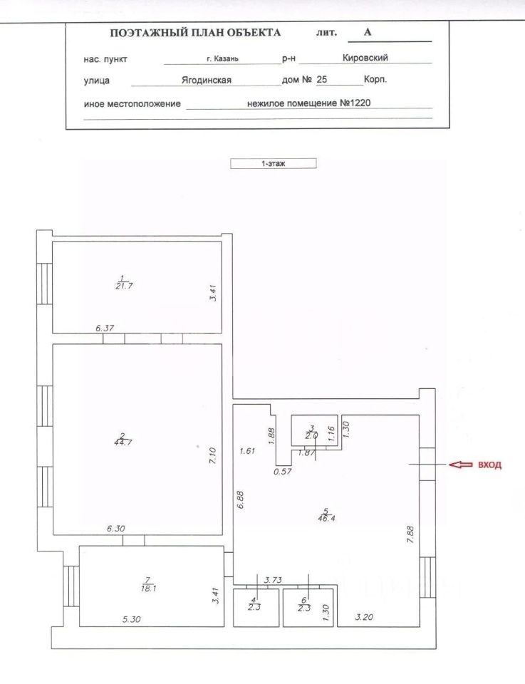
Помещение свободного назначения, 138 м²
Площадь138 м²
Этаж1 из 18
ПомещениеСвободно
Отчёт о привлекательности объектаУзнайте, насколько помещение и район подходят для вашего бизнеса
Что входит в отчёт
  • Охват населения
  • Пешеходный трафик
  • Автомобильный трафик
  • Средний бюджет семьи по району
  • Арендные ставки рядом
  • Точки притяжения
  • Конкуренты в радиусе 1 км
  • Рекомендации по выбору места для бизнеса
Сдаю 138м на первом этаже Сдаю 138м, находящиеся на первом этаже с отдельным входом. В помещении выполнен хороший ремонт, есть 2 санузла и отдельные м/т в каждом кабинете. Внутри есть кондиционеры, видеокамеры, система вентиляции. Характеристики: - 1 линия - Отдельная входная группа - Общая парковка - Есть возможность разместить вывеску - Погрузка/разгрузка: Главный вход - Доступ 24/7 - ХВС/ГВС - 2 санузла - Естественная вентиляция - Хороший ремонт - Высота потолков 3,8 м - Возможность перепланировки - Видеонаблюдение - Коммунальные услуги оплачиваются отдельно АРР1 По всем вопросам можете обращаться к представителю собственника: Максим (747), Антон (201)
lock

Войдите или зарегистрируйтесь
для просмотра информации

Просматривайте условия сделки и всю информацию об объекте
Сохраняйте фильтры в поиске и не вводите заново
Доступ к избранному с любого устройства
Неограниченное добавление в избранное
Позвоните автору
Вам ответят на все вопросы
Остались вопросы по объявлению?
Позвоните владельцу объявления и уточните необходимую информацию.
  • Инфраструктура
  • Похожие рядом
  • Общая площадь138 м²
Помощь надёжных риелторов
Риелтор партнёр Циан поможет купить или продать любую недвижимость
Агентство недвижимости
Суперагент
130 000 ₽/мес.
1 737 $/мес.
1 485 /мес.
Цена за метр
11 305 ₽ в год
Налог
УСН
Комиссия
нет
Коммунальные платежи
не включены
Эксплуатационные расходы
не включены
Агентство недвижимости
Суперагент
На Циан
7 лет
Объектов в работе
более 1000