Мы используем куки-файлы. Соглашение об использовании
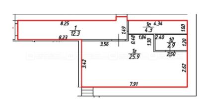
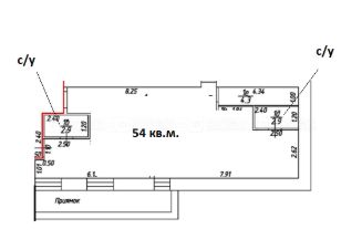
Помещение свободного назначения, 45,4 м²
Площадь45,4 м²
Этаж-1 из 4
ПомещениеСвободно
Отчёт о привлекательности объектаУзнайте, насколько помещение и район подходят для вашего бизнеса
Что входит в отчёт
  • Охват населения
  • Пешеходный трафик
  • Автомобильный трафик
  • Средний бюджет семьи по району
  • Арендные ставки рядом
  • Точки притяжения
  • Конкуренты в радиусе 1 км
  • Рекомендации по выбору места для бизнеса
Объект 113012 Помещение в центре! Петербургская 25В. Предлагается нежилое помещение 45,4 кв.м. на цокольном/4 этажного кирпичного, отдельно стоящего административного здания 2006 г.п., расположенного в самом центре г. Казань. На второй линии пешеходной улицы Петербургская, в 100 м. от центральной станции метро " Площадь Тукая". Рядом расположены, КФУ, ул. Баумана, ТЦ "Кольцо" и ТЦ "Республика". Отлично подходит для использования под оказание услуг или офисной деятельности. Офис представлен в предчистовой отделке, стены оштукатурены и зашпаклеваны, стяжка пола, разводка лучевого отопления и электричества, выведены коммуникации (централизованные водоснабжение и канализация), установлены новые входная дверь, алюминиевый секционный радиатор. Высота потолка 3 метра. Прямой проход к зданию с ул. Петербургская и пер. Щербаковский. Парковка во дворе, подъездной путь с Щербаковского переулка. Документы подготовлены, чистая продажа, ключи в день сделки! Сохраните объявление в избранное, чтобы не потерять выгодный объект • Полное юридическое сопровождение сделки + проверка по реестрам • Поможем с оценкой доходности, назначением, подбором арендатора Звоните с 8:00 до 20:00 или пишите — ответим оперативно
lock

Войдите или зарегистрируйтесь
для просмотра информации

Просматривайте условия сделки и всю информацию об объекте
Сохраняйте фильтры в поиске и не вводите заново
Доступ к избранному с любого устройства
Неограниченное добавление в избранное
Позвоните автору
Вам ответят на все вопросы
Остались вопросы по объявлению?
Позвоните владельцу объявления и уточните необходимую информацию.
  • Инфраструктура
  • Похожие рядом
Помощь надёжных риелторов
Риелтор партнёр Циан поможет купить или продать любую недвижимость
4 000 000 ₽
52 595 $
44 631
Цена за метр
88 106 ₽
Налог
НДС включен: 721 311 ₽
Агентство недвижимости
Документы проверены
На Циан
11 лет
Объектов в работе
более 2000
Риелтор
3,0・2