Мы используем куки-файлы. Соглашение об использовании
Площадь1 620 м²
Этажность2
Отчёт о привлекательности объектаУзнайте, насколько помещение и район подходят для вашего бизнеса
Что входит в отчёт
  • Охват населения
  • Пешеходный трафик
  • Автомобильный трафик
  • Средний бюджет семьи по району
  • Арендные ставки рядом
  • Точки притяжения
  • Конкуренты в радиусе 1 км
  • Рекомендации по выбору места для бизнеса
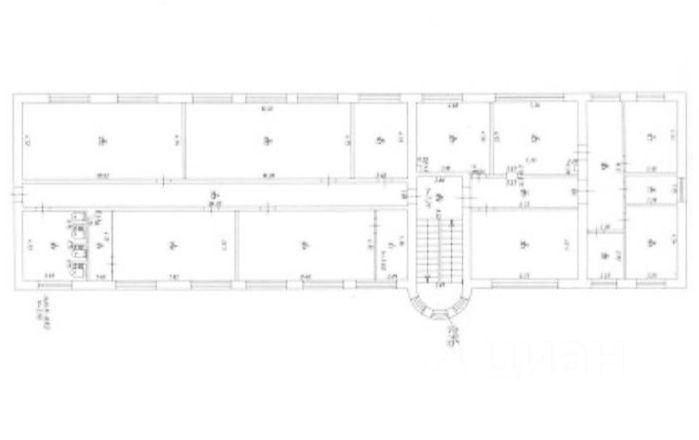
Продаю два здания 954м² и 666м² в промышленном районе. Здания в собственности . Землю НУЖНО ОФОРМЛЯТЬ! Характеристики: - 1 линия - Отдельная входная группа - Общая парковка - Доступ 24/7 - Требует ремонта - Кабинетная планировка -Коммуникаций нет - Отдельно стоящее здание - С окнами АРР0 По всем вопросам можете обращаться к представителю собственника: Андрей (218)
lock

Войдите или зарегистрируйтесь
для просмотра информации

Просматривайте условия сделки и всю информацию об объекте
Сохраняйте фильтры в поиске и не вводите заново
Доступ к избранному с любого устройства
Неограниченное добавление в избранное
Позвоните автору
Вам ответят на все вопросы
Остались вопросы по объявлению?
Позвоните владельцу объявления и уточните необходимую информацию.
  • Инфраструктура
  • Похожие рядом
Помощь надёжных риелторов
Риелтор партнёр Циан поможет купить или продать любую недвижимость
Агентство недвижимости
Суперагент
25 000 000 ₽
328 576 $
279 607
Цена за метр
15 433 ₽
Налог
УСН
Агентство недвижимости
Суперагент
На Циан
7 лет
Объектов в работе
более 1000