Мы используем куки-файлы. Соглашение об использовании
Площадь400 м²
Этажность2
КлассB
Отчёт о привлекательности объектаУзнайте, насколько помещение и район подходят для вашего бизнеса
Что входит в отчёт
  • Охват населения
  • Пешеходный трафик
  • Автомобильный трафик
  • Средний бюджет семьи по району
  • Арендные ставки рядом
  • Точки притяжения
  • Конкуренты в радиусе 1 км
  • Рекомендации по выбору места для бизнеса
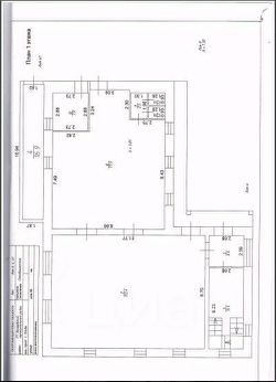
ПЛАТИМ АГЕНТАМ. Входим в ассоциацию профессионалов коммерческой недвижимости КОКОН. Здание расположено в селе Усады. Большой автомобильный и пешеходный трафик. Налоговая: 84. Лифты: Нет. Вентиляция: Приточно-вытяжная. Кондиционирование: Сплит-системы. Безопасность: Круглосуточный доступ, Система пожаротушений. Парковка: Наземная. Описание помещения: Здание целиком, по факту площадь больше, вместе с цокольным этажом 669 м2. 1 этаж - 232 м2. 2 этаж - 217 м2. Цоколь - 219 м2. В здании все коммуникации. Планировка: смешанная. Типовой ремонт. Тип налогообложения: УСН. Лот 59834-14
lock

Войдите или зарегистрируйтесь
для просмотра информации

Просматривайте условия сделки и всю информацию об объекте
Сохраняйте фильтры в поиске и не вводите заново
Доступ к избранному с любого устройства
Неограниченное добавление в избранное
Позвоните автору
Вам ответят на все вопросы
Остались вопросы по объявлению?
Позвоните владельцу объявления и уточните необходимую информацию.
  • Инфраструктура
  • Похожие рядом
Приточная вентиляция
Местное кондиционирование
Помощь надёжных риелторов
Риелтор партнёр Циан поможет купить или продать любую недвижимость
64 000 000 ₽
854 695 $
729 120
Цена за метр
160 000 ₽
Налог
УСН
Агентство недвижимости
Риелтор
Суперагент
5,0・2