Мы используем куки-файлы. Соглашение об использовании
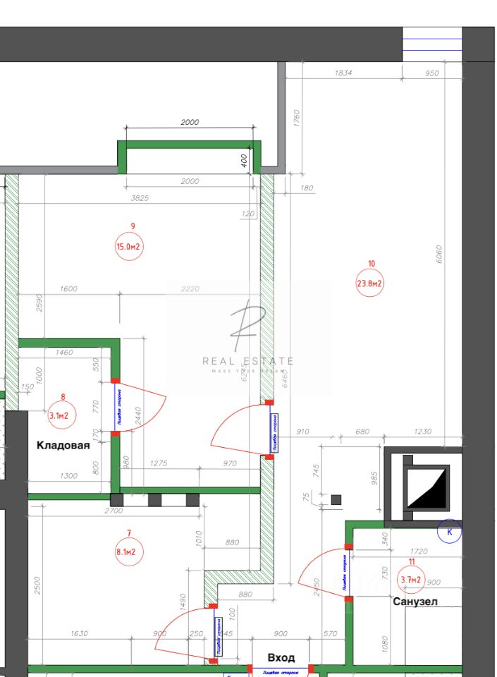
Помещение свободного назначения, 54,2 м²

Продается помещение свободного назначения, 54,2 м²

Площадь54,2 м²
Этаж2 из 6
Отчёт о привлекательности объектаУзнайте, насколько помещение и район подходят для вашего бизнеса
Что входит в отчёт
  • Охват населения
  • Пешеходный трафик
  • Автомобильный трафик
  • Средний бюджет семьи по району
  • Арендные ставки рядом
  • Точки притяжения
  • Конкуренты в радиусе 1 км
  • Рекомендации по выбору места для бизнеса
Внимание! Цена снижена! Продается коммерческое помещение в ЖК "Кремлевская жемчужина" по супер привлекательной цене! Идеальное место для вашего бизнеса! Уникальная локация в самом центре Казани: - Метро "Кремлевская" в 500 м - Остановка общественного транспорта в 2 минутах - Высокий пешеходный и туристический трафик! В шаговой доступности: - Кремль — 2 минуты (туристический поток!) - Дворец Земледельцев — 7 минут - Черное озеро — 8 минут - Улица Баумана и Оперный театр — пешком - КФУ и КАИ рядом (студенческая аудитория!) - Продуктовый магазин в этом же доме - Парковочное место за шлагбаумом Характеристики помещения: - Выполнен качественный ремонт - Дизайнерское освещение - Переменная высота потолков от 1,5 м до 4 м (Большая часть помещения 2,5 м) - 2 кондиционера - Вид на Корстон и Храм Вознесения Христова - 3 кабинета + санузел+ кладовая Идеально подойдет для: - Офиса туристической компании - Коворкинга или учебного центра - Студии (дизайна, красоты, йоги) - Шоу-рума - Кабинета частной практики Документы: - Один взрослый собственник - Без обременений - Перепланировка согласована Звоните прямо сейчас, пока это выгодное предложение не ушло! На это помещение можно взять ипотеку дешевле, чем на коммерцию!
lock

Войдите или зарегистрируйтесь
для просмотра информации

Просматривайте условия сделки и всю информацию об объекте
Сохраняйте фильтры в поиске и не вводите заново
Доступ к избранному с любого устройства
Неограниченное добавление в избранное
Позвоните автору
Вам ответят на все вопросы
Остались вопросы по объявлению?
Позвоните владельцу объявления и уточните необходимую информацию.
  • Инфраструктура
  • Похожие рядом
  • Тип зданияЖилой комплекс
  • Общая площадь54,2 м²
Помощь надёжных риелторов
Риелтор партнёр Циан поможет купить или продать любую недвижимость
9 599 000 ₽
128 315 $
109 226
Цена за метр
177 104 ₽
Налог
НДС не включен
Агентство недвижимости
ID 105130774
Документы проверены