Мы используем куки-файлы. Соглашение об использовании
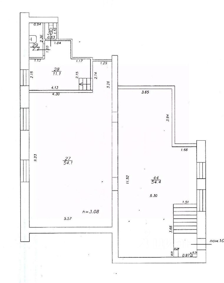
Помещение свободного назначения, 125 м²

Продается помещение свободного назначения, 125 м²

Площадь125 м²
Этаж1 из 5
Отчёт о привлекательности объектаУзнайте, насколько помещение и район подходят для вашего бизнеса
Что входит в отчёт
  • Охват населения
  • Пешеходный трафик
  • Автомобильный трафик
  • Средний бюджет семьи по району
  • Арендные ставки рядом
  • Точки притяжения
  • Конкуренты в радиусе 1 км
  • Рекомендации по выбору места для бизнеса
Характеристики: - 1 линия - Отдельная входная группа - Общая парковка - Есть возможность разместить вывеску - Погрузка/разгрузка: Главный вход - Доступ 24/7 - ХВС/ГВС - Свой санузел - Центральное отопление - Естественная вентиляция - Максимальная мощность 70 кВт - Хороший ремонт - Стрит ритейл - Без лифта - Высота потолков 3.08 м - С окнами - Возможность перепланировки - Видеонаблюдение - Коммунальные услуги оплачиваются отдельно Дополнительная информация: Возможна продажа как с арендатором так и под свой собственный бизнес. Два парковочных места во дворе со шлагбаумом. АРР0 По всем вопросам можете обращаться к представителю собственника: Камалов Р. (746)
lock

Войдите или зарегистрируйтесь
для просмотра информации

Просматривайте условия сделки и всю информацию об объекте
Сохраняйте фильтры в поиске и не вводите заново
Доступ к избранному с любого устройства
Неограниченное добавление в избранное
Позвоните автору
Вам ответят на все вопросы
Остались вопросы по объявлению?
Позвоните владельцу объявления и уточните необходимую информацию.
  • Инфраструктура
  • Похожие рядом
  • Общая площадь125 м²
Помощь надёжных риелторов
Риелтор партнёр Циан поможет купить или продать любую недвижимость
Агентство недвижимости
Суперагент
18 800 000 ₽
253 041 $
212 312
Цена за метр
150 400 ₽
Налог
УСН
Агентство недвижимости
Суперагент
На Циан
7 лет
Объектов в работе
839