Мы используем куки-файлы. Соглашение об использовании
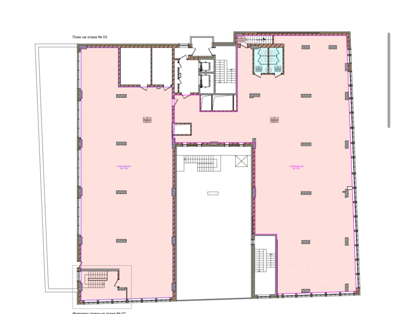
Помещение свободного назначения, 400 м²

Продается помещение свободного назначения, 400 м²

Площадь400 м²
Этаж3 из 12
ПомещениеСвободно
Отчёт о привлекательности объектаУзнайте, насколько помещение и район подходят для вашего бизнеса
Что входит в отчёт
  • Охват населения
  • Пешеходный трафик
  • Автомобильный трафик
  • Средний бюджет семьи по району
  • Арендные ставки рядом
  • Точки притяжения
  • Конкуренты в радиусе 1 км
  • Рекомендации по выбору места для бизнеса
Продается коммерческое помещение на 1 линии, ЖК Акчарлак на пересечении улиц Чехова и Шмидта Есть возможность приобрести как 400 кв.м., так и целый этаж 830 кв.м. Отдельный вход, с двух сторон дома. Косметический ремонт Панорамные окна Полноценная просторная терраса Пожарная и охранная сигнализация Все коммуникации центральные парковка около дома и муниципальная рядом остановка общественного транспорта Можно рассмотреть как готовый арендный бизнес (хостес, офисное помещение, спорт и фитнес зал, ресторан итд) Есть возможность сделать перепланировку по необходимости Покажем в удобное для вас время.
lock

Войдите или зарегистрируйтесь
для просмотра информации

Просматривайте условия сделки и всю информацию об объекте
Сохраняйте фильтры в поиске и не вводите заново
Доступ к избранному с любого устройства
Неограниченное добавление в избранное
Позвоните автору
Вам ответят на все вопросы
Остались вопросы по объявлению?
Позвоните владельцу объявления и уточните необходимую информацию.
  • Инфраструктура
  • Похожие рядом
  • Площадь участка0 га
  • Общая площадь400 м²
  • Статус участкаВ собственности
Приточная вентиляция
Центральное кондиционирование
Центральное отопление
Сигнализация
Помощь надёжных риелторов
Риелтор партнёр Циан поможет купить или продать любую недвижимость
СобственникID 102305613
    50 000 000 ₽
    657 432 $
    557 877
    Цена за метр
    125 000 ₽
    Налог
    УСН
    СобственникID 102305613