Мы используем куки-файлы. Соглашение об использовании
Только на ЦианОнлайн-бронирование
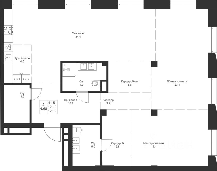
Общая площадь121,2 м²
Жилая площадь41,6 м²
Площадь кухни4,6 м²
Этаж3 из 9
Год сдачи2025
ДомНе сдан
ОтделкаБез отделки
Продается 2-комнатная квартира 68 площадью 120,62 кв.м на 3 этаже в жилой резиденции премиум-класса ЖК "Мифы", созданная для ценителей роскошной и приватной жизни в городе. Резиденция из 4-х корпусов, объединенная галереей с респектабельным лобби и общественным пространством. Локация: Комплекс расположен в самом сердце Советского района Казани, что обеспечивает удобный доступ ко всем ключевым объектам городской инфраструктуры. Характеристики и преимущества ЖК "Мифы": Эксклюзивная концепция: ЖК "Мифы" предлагает уникальную комбинацию роскоши и комфорта, являясь идеальным местом для проживания. Награды: комплекс признан лучшим жилым комплексом в конкурсе на лучшее архитектурное и градостроительное решение в Казани. Клубный проект: камерные пространства. Удобства: квартиры с террасами, которые подарят великолепные виды и свежий воздух. Свободная планировка, что позволит создать индивидуальное жилое пространство. Сервис: консьерж-сервис, первоклассное лобби, создающее атмосферу гостеприимства и высокого статуса. Инфраструктура: подземный паркинг, обеспечивающий безопасность и комфорт владельцев автомобилей. Контакты: По вопросам приобретения и для записи на просмотр квартир, пожалуйста, свяжитесь с нашим отделом продаж

О квартире

Тип жилья

Новостройка

Общая площадь

121,2 м²

Жилая площадь

41,6 м²

Площадь кухни

4,6 м²

Высота потолков

3 м

Отделка

Без отделки

О доме

Количество лифтов

9 грузовых

Тип дома

Монолитный

Понравилась квартира — узнайте о ней больше

Застройщик ответит на все вопросы

Отделка в ЖК

  • Без отделки

3D-тур

Посмотрите 3D-тур, чтобы оценить объект

О ЖК «Мифы»

  • Сдача комплекса
    Сдан
  • Застройщик
    Ак Барс Дом
  • Класс
    Бизнес
  • Тип дома
    Монолитный
  • Парковка
    Гостевая
  • Отделка
    Без отделки
  • Тип комплекса
    Жилой комплекс
Похоже на то, что вы ищете?

Особенности жилого комплекса

  • Парковка

  • Внутренний двор

  • Архитектура

  • Входная группа

Подробнее о жилом комплексе

Акции в ЖК «Мифы»

Узнайте про персональные условия и дополнительные скидки при покупке квартиры у застройщика

Рассрочка до 30.03.2027г.

Материнский капитал

Ипотечный калькулятор
  • Базовая
  • Семейная
  • ИТ-ипотека
  • 20%
  • 30%
  • 40%
  • 50%
лет
  • 10 лет
  • 20 лет
  • 30 лет
Загружаем предложения от застройщика и банков

Расположение

Корпус проверен наш.дом.рф
Обновлено 16 декабря 2025
  • Нет в реестре проблемных объектов
  • Застройщик не банкрот
  • Есть эскроу счёт
  • Неактуальные фото стройки

Ещё квартиры в жилом комплексе

33 квартиры в продаже · Сдан
Автор объявления

Застройщик «Ак Барс Дом»

Надежный застройщик
Мы строим не просто дома, мы создаем проекты с нуля: производим, проектируем, внедряем новые технологии каждый день. Мы говорим: «Дом, там где мы!» . Это значит, что главными ценностями нашей компании выступают клиентоориентированность, технологичность, и...
50 055 600 ₽
Цена за метр
413 000 ₽/м²
Условия сделки
долевое участие (214-ФЗ)
14 наградПолучено с 2015 года на российских конкурсах
746 219 м²Ввели в эксплуатацию с 2016 года
Больше 2 300 человекРаботают в компании