Мы используем куки-файлы. Соглашение об использовании
Онлайн-бронирование
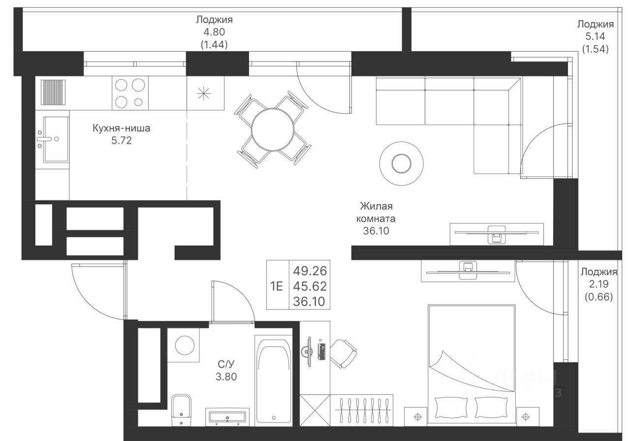
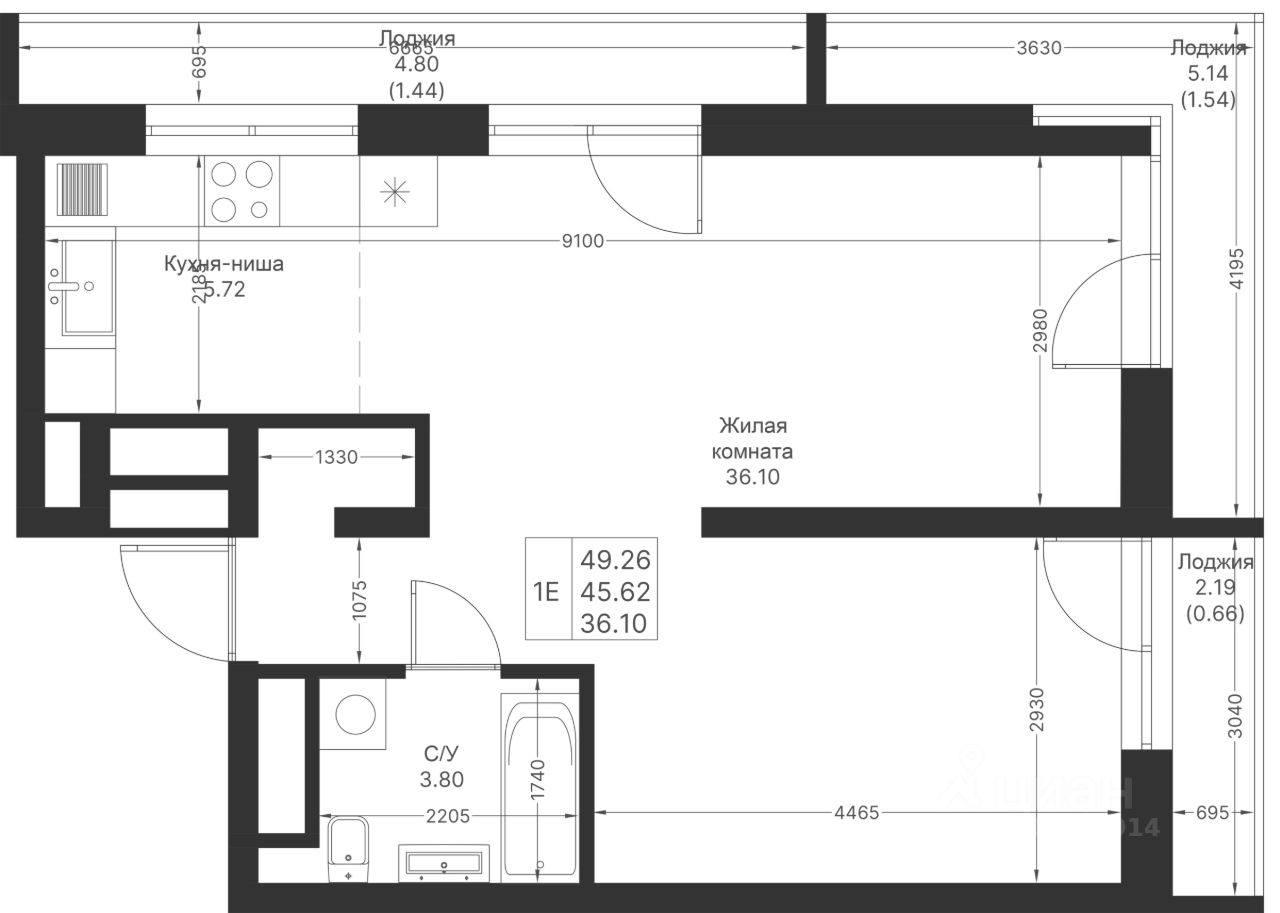
Общая площадь49,26 м²
Жилая площадь36,1 м²
Площадь кухни5,7 м²
Этаж11 из 25
Год сдачи2027
ДомНе сдан
ОтделкаПредчистовая
Продается 1-комнатная квартира 310 площадью 49,26 кв.м на 11 этаже в строящемся доме проекта "Мой Ритм" компании "Ак Барс Дом". ЖК "МОЙ РИТМ" — современный жилой комплекс в одном из лучших районов Казани, на пересечении пр. Победы и ул. Сахарова, рядом со строящейся станцией метро. ПРЕИМУЩЕСТВА: Школы, детские сады, поликлиника в шаговой доступности. Рядом Горкинско-Ометьевский парк, ТРЦ "МЕГА" и "OBI", "Агропарк" Экологичные детские площадки, спортивные зоны с резиновым покрытием, озеленение. Огромный игровой парк "Озеро дракона" с зонами активности и отдыха. Безопасный двор без машин, видеонаблюдение по периметру. Просторный подъезд с колясочной, вход на уровне земли. Проект "Мой Ритм" занял призовые места в номинациях "Лучший жилой комплекс-новостройка в Татарстане" и "Лучший проект в РФ, масштабная застройка свободных территорий" по версии Единого ресурса застройщиков РФ. УДОБНАЯ ПЛАНИРОВКА: Уютная и продуманная 1-комнатная квартира с просторной жилой комнатой и кухней. Удачное зонирование на гостевое и личное пространство. Кухонный гарнитур предусмотрен в нише, чтобы зрительно скрыть рабочие процессы. Высокие потолки 2, 7 м и прихожая, в которой предусмотрена ниша для гардеробной. ПОДБОР КВАРТИРЫ: Подбор квартиры, полное юридическое сопровождение сделки — БЕСПЛАТНО. Наши специалисты помогут вам в решении вопроса приобретения недвижимости с момента консультации до момента передачи ключа от квартиры.

О квартире

Тип жилья

Новостройка

Общая площадь

49,26 м²

Жилая площадь

36,1 м²

Площадь кухни

5,7 м²

Высота потолков

2,75 м

Санузел

2 совмещенных

Вид из окон

Во двор

Отделка

Предчистовая

О доме

Количество лифтов

4 пассажирских, 13 грузовых

Понравилась квартира — узнайте о ней больше

Застройщик ответит на все вопросы

Отделка квартиры

Предчистовая — остаётся установить сантехнику, розетки, двери и навести красоту: поклеить обои и уложить на пол покрытие

Отделка в ЖК

  • Предчистовая
  • Без отделки

3D-тур

Посмотрите 3D-тур, чтобы оценить объект

О ЖК «Мой Ритм»

  • Сдача комплекса
    Сдача в 2026—2030, есть сданные
  • Застройщик
    Ак Барс Дом
  • Класс
    Комфорт
  • Тип дома
    Монолитно-кирпичный, монолитный
  • Парковка
    Отдельная многоуровневая, гостевая
  • Отделка
    Без отделки, предчистовая
  • Тип комплекса
    Жилой комплекс
  • Брошюра ЖК
Похоже на то, что вы ищете?

Особенности жилого комплекса

  • Парковка

  • Внутренний двор

  • Архитектура

  • Входная группа

Подробнее о жилом комплексе

Акции в ЖК «Мой Ритм»

Узнайте про персональные условия и дополнительные скидки при покупке квартиры у застройщика
logo

Выгода до -26%

Исламская ипотека

Рассрочка до 31.12.27г.

Рассрочка до 30.08.28г.

Рассрочка до 30.03.27г.

logo

Скидка до 2 млн.руб.

logo

Выгода 5%

Материнский капитал

Часть ПВ за наш счет

Паркинг. Рассрочка 10 лет

logo

Часть ПВ за наш счёт

Паркинг. Рассрочка 7 лет

Ипотечный калькулятор
  • Базовая
  • Семейная
  • ИТ-ипотека
  • 20%
  • 30%
  • 40%
  • 50%
лет
  • 10 лет
  • 20 лет
  • 30 лет
Загружаем предложения от застройщика и банков

Расположение

Корпус проверен наш.дом.рф
Обновлено 6 мая 2026
  • Нет в реестре проблемных объектов
  • Застройщик не банкрот
  • Есть эскроу счёт
  • Актуальные фото стройки

Ещё квартиры в жилом комплексе

487 квартир в продаже · Сдача в 2026—2030, есть сданные
Автор объявления

Застройщик «Ак Барс Дом»

Надежный застройщик
Мы строим не просто дома, мы создаем проекты с нуля: производим, проектируем, внедряем новые технологии каждый день. Мы говорим: «Дом, там где мы!» . Это значит, что главными ценностями нашей компании выступают клиентоориентированность, технологичность, и...
12 561 300 ₽
Цена за метр
255 000 ₽/м²
Условия сделки
долевое участие (214-ФЗ)
14 наградПолучено с 2015 года на российских конкурсах
746 219 м²Ввели в эксплуатацию с 2016 года
Больше 2 300 человекРаботают в компании