Мы используем куки-файлы. Соглашение об использовании
Онлайн-бронирование
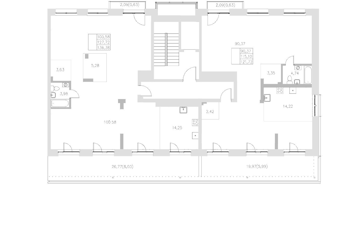
Общая площадь136,38 м²
Жилая площадь100,6 м²
Площадь кухни14,3 м²
Этаж7 из 8
Год сдачи2027
ДомНе сдан
ОтделкаПредчистовая
Уютная квартира в ЖК бизнес-класса в историческом сердце Казани. 10 минут от Кремля, между улицей Адмиралтейской и старым руслом Казанки. Рядом детские сады, школы и Зилантов монастырь. Приватные зелёные дворы с ландшафтным дизайном, лаунж-зонами, детскими и спортивными площадками. Предчистовая отделка премиум-класса: умные замки, видеодомофоны, терморегуляция, улучшенная шумоизоляция. Подземный паркинг с системой распознавания номеров и зарядками для электромобилей. Выгодные условия приобретения от застройщика! Преимущества: - Бизнес-класс в исторической части Казани - Английская промышленная архитектура: фасады из керамического кирпича серо-бежевого и винно-красного цветов, переменная этажность, изящные террасы и скошенные углы зданий, обилие стекла, вертикальные балки и арочные конструкции - 10 минут на машине до Кремля, до ближайших остановок общественного транспорта 10 минут неспешным шагом - Бульвар для неспешного променада, сквер для прогулок - Приватные дворы-парки с обилием зелени и продуманным ландшафтным дизайном - Во дворах лаунж-зоны для спокойного отдыха, игровые пространства для детей - Детский сад на 340 мест, частный детский сад на 80 мест, школа на 1 501 место - Варианты со свободной планировкой на последних этажах и открытыми балконами с видом на Волгу и Кремль - Компактные однокомнатные, евроварианты с просторными кухнями-гостиными, приватные с мастер-спальнями с ванными и гардеробными, практичные с кладовыми, на выбор с зимними садами и террасами на первых этажах - Хорошая черновая отделка: высокопрочные металлические входные двери с сейфовыми замками, улучшенная тепло- и шумоизоляция, окна с энергоэффективными стеклопакетами, скрытая разводка инженерных коммуникаций, электро- и водоснабжения, радиаторы с системой терморегуляции от ведущих производителей - Двери с умными замками, видеодомофоны, питьевая вода Россия, Республика Татарстан, Казань, Адмиралтейская , 003 кв.28

О квартире

Тип жилья

Новостройка

Общая площадь

136,38 м²

Жилая площадь

100,6 м²

Площадь кухни

14,3 м²

Высота потолков

2,87 м

Отделка

Предчистовая

О доме

Количество лифтов

17 пассажирских

Тип дома

Монолитно-кирпичный

Пандус

Есть

Понравилась квартира — узнайте о ней больше

Застройщик ответит на все вопросы

Отделка квартиры

Предчистовая — остаётся установить сантехнику, розетки, двери и навести красоту: поклеить обои и уложить на пол покрытие

О ЖК «Статум»

  • Сдача комплекса
    Сдача в 2 кв. 2027, есть сданные
  • Застройщик
    Унистрой
  • Класс
    Бизнес
  • Тип дома
    Монолитно-кирпичный
  • Парковка
    Подземная, гостевая
  • Отделка
    Предчистовая
  • Тип комплекса
    Жилой комплекс
Похоже на то, что вы ищете?

Особенности жилого комплекса

  • Парковка

  • Внутренний двор

  • Парки

  • Архитектура

  • Входная группа

  • Лифт

Подробнее о жилом комплексе

Акции в ЖК «Статум»

Узнайте про персональные условия и дополнительные скидки при покупке квартиры у застройщика

Рассрочка

Рассрочка до 7 лет

logo

Выгода до 800 000 ₽

logo

Бонус 1% иногородним

Материнский капитал

Трейд-ин

Ипотечный калькулятор
  • Базовая
  • Семейная
  • ИТ-ипотека
  • 20%
  • 30%
  • 40%
  • 50%
лет
  • 10 лет
  • 20 лет
  • 30 лет
Загружаем предложения от застройщика и банков

Расположение

Корпус проверен наш.дом.рф
Обновлено 14 апреля 2026
  • Нет в реестре проблемных объектов
  • Застройщик не банкрот
  • Есть эскроу счёт
  • Актуальные фото стройки

Ещё квартиры в жилом комплексе

447 квартир в продаже · Сдача в 2 кв. 2027, есть сданные
Автор объявления

Застройщик «Унистрой»

Надежный застройщик
Унистрой—федеральная девелоперская компания «Унистрой», реализующая проекты в Казани, республиках Татарстан и Башкортостан, Ленинградской и Самарской областях. Компания работает на рынке с 1996 года и специализируется на развитии жилой и коммерческой недв...
42 480 000 ₽
Цена за метр
311 483 ₽/м²
Условия сделки
свободная продажа
2 100 000 м²Ввели в эксплуатацию с 1996 года
6 регионов страныВ которых строят жилые дома и коммерческую недвижимость
53 наградыПолучено с 2016 года на российских конкурсах