Мы используем куки-файлы. Соглашение об использовании
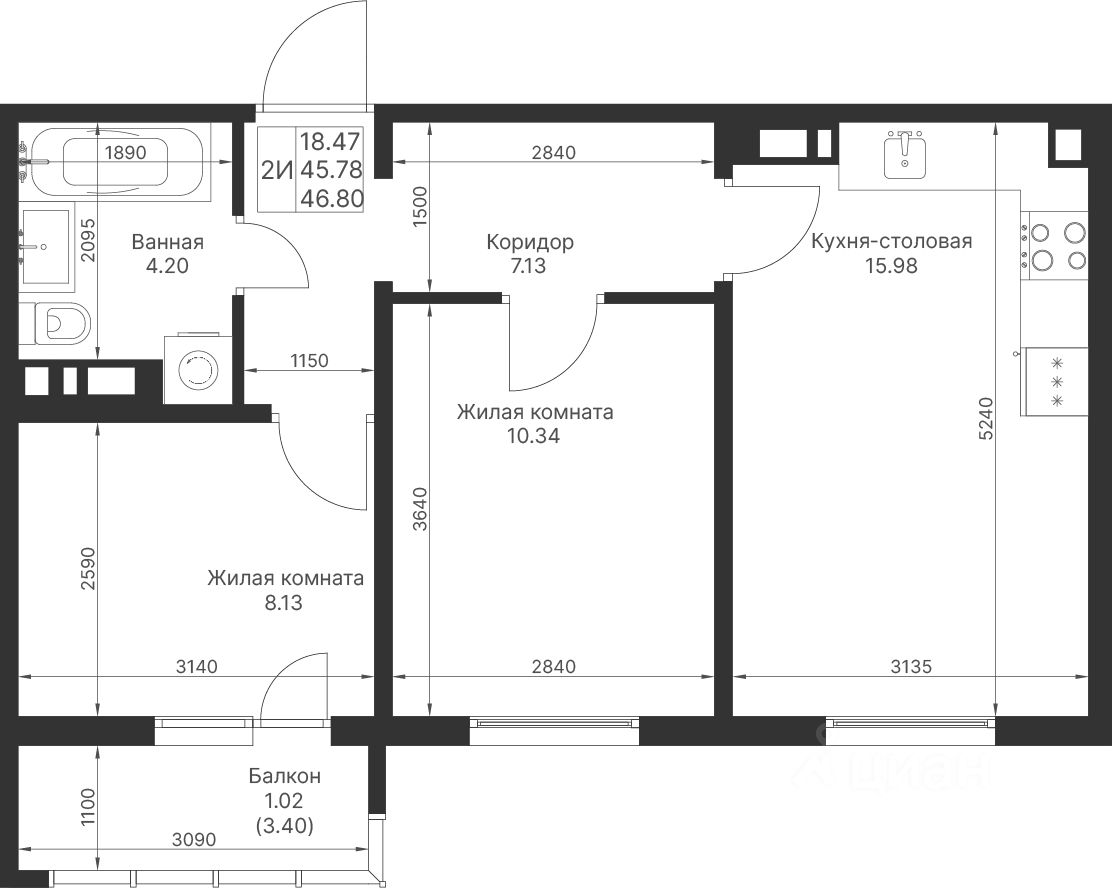
Общая площадь46,8 м²
Жилая площадь18,5 м²
Площадь кухни16 м²
Этаж2 из 17
Год сдачи2028
ДомНе сдан
ОтделкаПредчистовая
Продается 2-комнатная квартира 3 площадью 46,8 кв.м на 2 этаже в строящемся ПК 1-3 доме проекта "Дома у сада" компании "Aк Барс Дом". ЖК ДОМА У САДА — это современный жилой комплекс с развитой инфраструктурой, прекрасными видами и удобным расположением. Жилой комплекс расположен по Оренбургскому тракту и имеет высокую транспортную доступность: до города можно доехать за 15 минут на машине или автобусе (рядом остановка с 4 маршрутами). ПРЕИМУЩЕСТВА: Благоустройство территории продумано до мелочей: здесь много места для прогулок и занятий спортом, есть спортивные и детские площадки с локациями по интересам, шезлонги и беседки в тени деревьев. Рядом 2 лицея, детский сад, магазины и остановки общественного транспорта. Функциональный подъезд с современным ремонтом, бесступенчатым входом и колясочной. Закрытый двор без машин. Видеонаблюдение на первых этажах и по периметру домов. Вокруг природа, спокойствие и отсутствие постоянного городского шума. УДОБНАЯ ПЛАНИРОВКА: Просторная 2-комнатная квартира создаёт комфортные условия для жизни всей семьи. Главный акцент — большая кухня-гостиная. Здесь удобно готовить, собираться за общим столом и проводить время вместе. Две изолированные комнаты дарят больше личного пространства. Одна из них имеет увеличенную площадь, и пространство можно организовать так, как нужно семье. В просторном коридоре есть большая ниша под гардероб. Это помогает поддерживать порядок и освобождает жилые комнаты от лишних вещей. Балкон создаёт дополнительные возможности для отдыха или работы, что делает квартиру ещё более функциональной. ПРИОБРЕСТИ КВАРТИРУ МОЖНО: • наличным и безналичным расчётом по 100% оплате; • с использованием маткапитала; • с использованием жилищных сертификатов; • в ипотеку; • онлайн покупка. ПОДБОР КВАРТИРЫ: Подбор квартиры, полное юридическое сопровождение сделки — БЕСПЛАТНО. Наши специалисты помогут вам в решении вопроса приобретения недвижимости с момента консультации до момента передачи ключа от квартиры. ЖК ДОМА У САДА для тех, кто выбирает для себя и своей семьи комфорт мегаполиса, но жить предпочитает в окружении природы. Здесь вы будете отдыхать душой и телом: вместо автомобильного шума — пение птиц, вместо городской суеты — прогулки по лесу и свежий воздух. ЗВОНИТЕ ПРЯМО СЕЙЧАС - наши консультанты подробно расскажут об акциях, вы получите максимально выгодные предложения по покупке жилья, одни из самых низких ставок на ипотеку, полное бесплатное сопровождение сделки.

О квартире

Тип жилья

Новостройка

Общая площадь

46,8 м²

Жилая площадь

18,5 м²

Площадь кухни

16 м²

Высота потолков

2,56 м

Отделка

Предчистовая

О доме

Тип дома

Монолитно-кирпичный

Понравилась квартира — узнайте о ней больше

Застройщик ответит на все вопросы

Отделка квартиры

Предчистовая — остаётся установить сантехнику, розетки, двери и навести красоту: поклеить обои и уложить на пол покрытие

О ЖК «Дома у Сада. Квартал-сад»

  • Сдача комплекса
    Сдача в 4 кв. 2028, есть сданные
  • Застройщик
    Ак Барс Дом
  • Класс
    Комфорт
  • Тип дома
    Монолитно-кирпичный, монолитный
  • Парковка
    Гостевая
  • Отделка
    Предчистовая
  • Тип комплекса
    Жилой комплекс
Похоже на то, что вы ищете?

Особенности жилого комплекса

  • Внутренний двор

  • Архитектура

  • Входная группа

Подробнее о жилом комплексе

Акции в ЖК «Дома у Сада. Квартал-сад»

Узнайте про персональные условия и дополнительные скидки при покупке квартиры у застройщика

Материнский капитал

Ипотечный калькулятор
  • Базовая
  • Семейная
  • ИТ-ипотека
  • 20%
  • 30%
  • 40%
  • 50%
лет
  • 10 лет
  • 20 лет
  • 30 лет
Загружаем предложения от застройщика и банков

Расположение

Корпус проверен наш.дом.рф
Обновлено 20 апреля 2026
  • Нет в реестре проблемных объектов
  • Застройщик не банкрот
  • Есть эскроу счёт
  • Актуальные фото стройки

Ещё квартиры в жилом комплексе

159 квартир в продаже · Сдача в 4 кв. 2028, есть сданные
Автор объявления

Застройщик «Ак Барс Дом»

Надежный застройщик
Мы строим не просто дома, мы создаем проекты с нуля: производим, проектируем, внедряем новые технологии каждый день. Мы говорим: «Дом, там где мы!» . Это значит, что главными ценностями нашей компании выступают клиентоориентированность, технологичность, и...
8 611 200 ₽
Цена за метр
184 000 ₽/м²
Условия сделки
долевое участие (214-ФЗ)
Бесплатно найдём новостройкуИ поможем на сделке
14 наградПолучено с 2015 года на российских конкурсах
746 219 м²Ввели в эксплуатацию с 2016 года
Больше 2 300 человекРаботают в компании