Собственник. Если не дозвонились, то напишите мне.
Если вы риэлтор, то мы коллеги и давайте конкретнее.
Добрый день. Продается квартира в доме на краю с лесом. Если вы обращали внимание, то обязательно заметите, что как только вы переходите улицу Дубравная в сторону леса, то воздух становится чище, шум города уменьшается и вы уже совсем в другом мире. Если вы за здоровый образ жизни, любите гулять или активный спорт, то это точно для вас.
Но и вся инфраструктура города здесь доступна, все сетевые магазины и пункты выдачи, современные детские игровые площадки, воркаут, баскетбол, волейбол, теннис и много всего разного. Все это на территории ЖК Экопарк Дубрава. Если вы решили не идти в лес, то прогуляться по красивым освещенным дворам Дубравы будет нескучно и красиво для вашего внутреннего эстета.
Сам дом кирпично-монолитный с фасадом из кирпича. Внизу вас поприветствует консьерж и не допустит спама в ваших почтовых ящиках. Здесь же на первом этаже хранение велосипедов и колясок, все под камерами. Два больших лифта, хоть и ходят быстро, но вы успеете поделиться новостями с соседями.
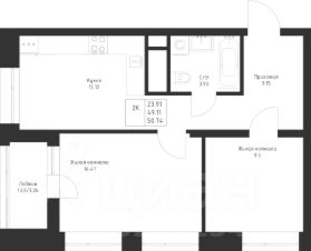
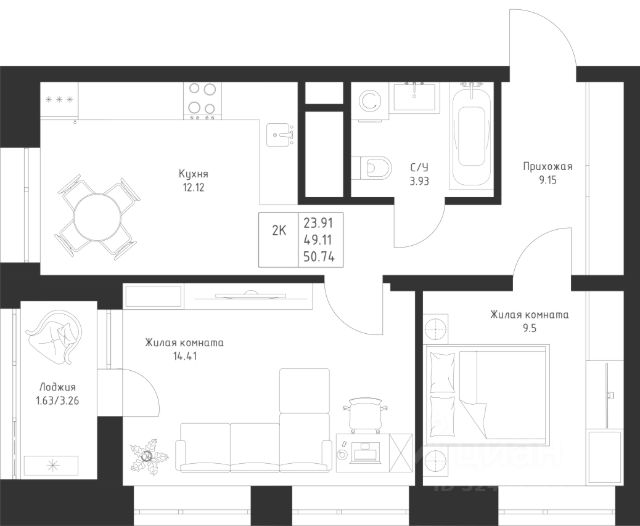
Квартира на 14 этаже, куда не долетают комары )
Продуманы места для хранения на входе, есть гардеробная в мастер-спальной. Один совмещенный санузел с водонагревателем на случай если идет профилактика, такое же везде бывает. Большую душевую можно использовать как ванную из за глубокого поддона, по высоте почти как ванная. Полежать с пенкой и помедитировать у вас точно получится, возможно даже вдвоем.
Кухня правильной прямоугольной формы, как и все комнаты имеет свой балкон. Балконы обшиты лиственницей, а не сосной, как предлагают профи в авито.
Кухня с островом и большим количеством хранения, здесь же нашлось место дивану и обеденному столу. Ну и телевизор, на котором сейчас все смотрят не новости, а фильмы с кинопоиска и других ресурсов. В потолке встроены динамики, так что большая кухня (20 метров) это не только место для встречи гостей, но и полноценная дискотека.
И на кухне и в комнатах установлен кондиционер. Ну не просто установлен, он работает.
Спальные как спальные, там обычно люди спят или занимаются вещами серьезными и не очень. Если у вас маленький ребенок, то в одной спальной есть перегородка и выделена отдельная комната для ребенка, который все таки еще должен быть под контролем, но уже нужно выделить отдельное пространство. Ну или можно использовать эту комнату как кабинет или еще одну гардеробную.
Во такой обзор без особых цифр получился.
Продает собственник. Причина продажи - переезд в Москву. Поэтому просмотр по отдельной договоренности, так как я в первой столице, а вы в третьей. Если я не взял трубку напишите сообщение или ждите обратного звонка. Спасибо.