192 473 ₽/м²
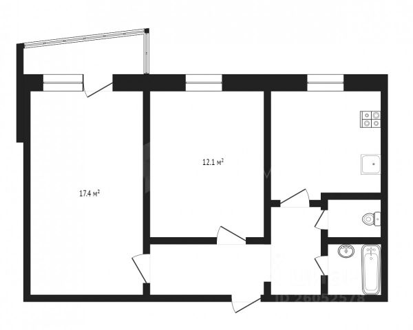
Продаём УЮТНУЮ 2-к квартиру в самом ПРЕСТИЖНОМ районе города, в тихом и спокойном месте, на ул. Чуйкова,65. Помещение после косметического ремонта, на полу линолеум, санузел совмещен. Удобная планировка включает в себя: * гостиную-зал с выходом на застекленную лоджию; * отдельную спальную комнату; * кухню; * совмещённый санузел. Квартира светлая с хорошей аурой и приятной обстановкой. Все окна выходят во двор. Приличный подъезд и хорошие соседи. Кирпичный дом. Благоустроенная территория, детская площадка, закрепленные парковочные места за квартирой, видеонаблюдение. Въезд во двор через шлагбаум. Дом внесен в программу - Наш двор. Будут класть новый асфальт, делать современную детскую площадку, тротуары, парковочные места. Так же запланированы ремонтные работы входной группы подъезда. Домом заведует ТСЖ, которое очень внимательно и качественно ведет управление домом и придомовой территорией. Отличное месторасположение. Рядом остановки общественного транспорта, супермаркеты, магазины, фитнес центры, аптеки, рестораны, кафе, банки, салоны красоты, медицинские центры, школы, детские сады, места для прогулок. В общем все, что нужно для жизни, рядом с домом. В этот же районе находятся: Татнефть Арена, РК Ривьера, Аквапарк. Район улиц Адоратского, Амирхана, Чуйкова. Свободная продажа. ПРОСМОТР ПО ДОГОВОРЁННОСТИ! Продается 2-комнатная квартира в ипотеку в микрорайоне кварталы 25, МЖК в городе Казань.

































































