


159 480 ₽/м²
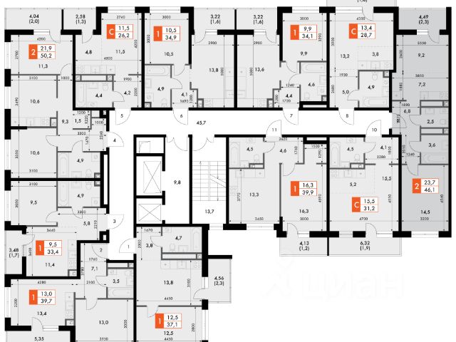
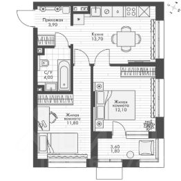
Прямая продажа от застройщика! Корпус 1.1 сдан! Жилой Комплекс комфорт-класса. Продаётся 2-к квартира номер 17 общей площадью 48.7 кв.м. на 3-м этаже 7 этажного здания. Предчистовая отделка. Цена с учётом скидки. Особенности квартиры: - Угловая планировка - больше пространства для ваших идей. - Увеличенное количество окон - дополнительное освещение и свежий воздух. - Гардеробная - удобство для хранения и организации вещей. - Лоджия - уютное место для отдыха и тишины. Квартира с предчистовой отделкой. Вам не придется заниматься черновыми и трудоёмкими работы, а чистовую отделку и дизайн - сделайте на свой вкус. Информация о комплексе: "Форест" - жилой комплекс комфорт-класса, созданный для тех, кто ищет гармонию с природой, не отказываясь от городского ритма. Расположенный в окружении леса и реки, он воплощает мечту о загородной жизни со всеми удобствами города. Здесь можно проживать самые тёплые моменты с близкими, дышать свежим хвойным воздухом, встречать утро на собственной террасе или проводить вечера с друзьями под открытым небом. Благоустроенная территория, прогулочные дорожки и зоны отдыха создают атмосферу уюта и гармонии. Поблизости - лес и Волга, куда можно выбраться на прогулку в любое время, не дожидаясь выходных. Благодаря вечнозелёным растениям и продуманному озеленению, дворы остаются зелёными круглый год. Транспортная доступность: - 4 мин. пушком до автобусной остановки - 5 мин. на машине до школы Внутренняя инфраструктура: Продуманное пространство для жизни, отдыха и развития. На территории комплекса работает собственный детский сад - современное и безопасное пространство, где дети всегда рядом с родителями. Во дворе установлены игровые комплексы для активных прогулок и развития малышей на свежем воздухе. Жителям доступны кафе и магазины, площадки для прогулок с питомцами, зоны для пикников и барбекю. Для любителей активного образа жизни предусмотрены велодорожки, воркаут-зоны и тропы для хайкинга, а в шаговой доступности находятся планетарий и глэмпинг. Просторный двор без машин и закрытая территория с системой контроля доступа обеспечивают высокий уровень безопасности и приватности. Здесь можно по-настоящему расслабиться и чувствовать себя дома - в окружении природы, комфорта и заботы о каждом дне.

































































































