


378 000 ₽/м²
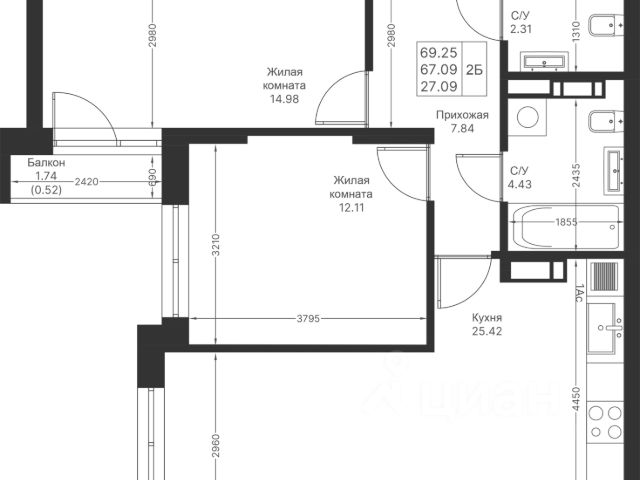
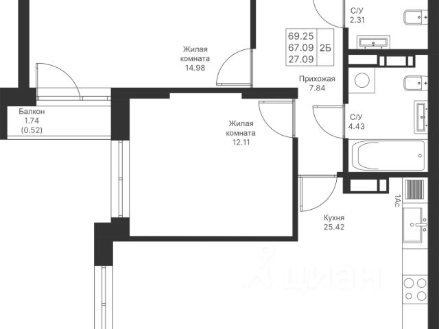
Продается 2-комнатная квартира 35 площадью 61,01 кв.м на 2 этаже проекта "Дом на Исхаки" от "Ак Барс Дом". Купить квартиру можно в ипотеку со ставкой от 4,5%. "Дом на Исхаки" новый жилой комплекс бизнес-класса в историческом центре Казани. Для тех, кто хочет жить в сердце мегаполиса, и при этом сохранить атмосферу приватности. В доме всего 56 квартир. ЖК расположен недалеко от Кремля в окружении необходимой инфраструктуры: в пешей доступности бизнес-центры, Академический лицей им. Лобачевского и другие школы, федеральные университеты, детские сады, Большой драматический театр, ЦУМ, ТРК "Кольцо", спортивные и медицинские центры. Проект "Дом на Исхаки" это премиальный комфорт. Уютный двор с детской площадкой и возможностями для спокойного отдыха, подземный паркинг с современной системой охраны и удобным заездом по считыванию номеров. Эффектная входная группа впечатляет: художественная подсветка фасадов, панорамное остекление, лаунж-зоны с мягкими диванами, система антиобледенения при входе. Вместительная колясочная и гостевой санузел в холле. В проекте высокие потолки до 3 м и до 4,4 м на мансардном этаже, просторные видовые террасы. Увеличенные окна и стекла с нанонапылением повышают шумоизоляцию, делают жилое пространство светлее и теплее, помогают сократить расходы на отопление. Комфортная 2-комнатная квартира с просторной кухней площадью почти 13 к.м., из которой открывается выход на балкон. Здесь по утрам за чашечкой чая или кофе вы сможете наслаждаться жизнью в центральной части Казани. Удачные пропорции 2 жилых комнат и окна увеличенного размера позволят воплотить любые дизайнерские задумки. В квартире 2 санузла и коридор с нишами под шкаф-купе. Видеонаблюдение по периметру дома, в лифтах, в подъезде и на парковке. Система IP-домофонии с функцией Face-ID. В квартиры установлены стильные вызывные панели со встроенной камерой. Через приложение вы можете наблюдать, что происходит перед дверью квартиры и удаленно открывать дверь в подъезде своим гостям. Мы сделали все, чтобы придать Вашей мечте форму дома. Дом там, где мы. Купить 2-комнатную квартиру с балконом в Казани.

















































































































































