75 595 ₽/м²
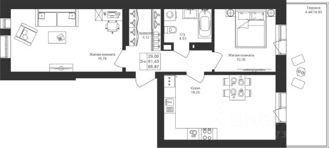
Продается 2-х комнатная квартира c большой кухней-гостиной площадью 52,9 м² на 2-ом этаже 2-х этажного кирпичного дома в с. Верхний Услон вблизи Волги. Это уютное жильё с тёплой атмосферой, удобной планировкой. Квартира отлично подойдет для семьи с детьми или пары, ценящих домашний комфорт. О квартире: • Общая площадь — 52,9 м². • Комнаты, где можно обустроить спальню, детскую или кабинет, и функциональная кухня-гостиная создают гармоничную атмосферу • Ухоженный вид — сделан хороший ремонт в светлых тонах • Установлены современные пластиковые окна • Индивидуальное отопление — а это значит низкие коммунальные платежи • Санузел совмещенный • Плюсом к квартире идут огород и гараж Дом и двор: • Кирпичный дом в окружении частного сектора, в живописном месте - рядом зелень, свежий воздух, но при этом есть всё необходимое для повседневной жизни • В доме всего два этажа, а значит: никаких лифтов, очередей и шума сверху • Чистый подъезд с дружелюбными соседями • Тихий двор с детской площадкой и возможностью парковки Приятный бонус - близость реки Волги - прогуливаясь по высокому берегу, Вы будете наслаждаться шикарной панорамой на реку и Казань. Инфраструктура: • Две школы, детские сады • Верхнеуслонская центральная районная больница • магазины "Пятерочка", "Магнит" и т. п. • Аптеки, почта, ПВЗ, остановки общественного транспорта — всё в шаговой доступности • Работает паромная переправа Аракчино-Верхний Услон, чтобы быстрее добраться до города Документы: • Один взрослый собственник • Полная стоимость в договоре • Квартира готова к сделке, подходит под ипотеку При необходимости с одобрением ипотеки, подбором выгодной страховки помогу. Звоните или пишите — отвечу быстро, организую просмотр в удобное время. Загляните — и вы сразу почувствуете: это не просто квартира. Это дом, в который хочется возвращаться. С удовольствием сделаем скидку хорошему покупателю после просмотра! Арт. 126066835



























































































