222 317 ₽/м²
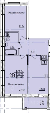
Продаётся 2-комнатная квартира в сданном доме (Дом 5), срок сдачи: I-кв. 2026, общей площадью 58.7 кв.м., на 4 этаже. Качественная предчистовая отделка - высота потолков 2,7 м, - подведена питьевая вода в каждой квартире, - установлена система автоматической передачи данных учета воды, электроэнергии, тепла в управляющую компанию, - видеодомофоны в каждой квартире, - портальные квартирные двери, - закрытые инженерные системы, - современные бесшумные лифты Otis. Жилой комплекс "Мечта" - это новое современное пространство для активной городской жизни в Советском районе Казани. Дом возводится по монолитной технологии строительства, за внешний вид зданий отвечает современное и технологичное устройство вентилируемого фасада, алюминиевые оконные стеклопакеты не подвержены погодным условиям, обладают отличной тепло- и звукоизоляцией, места общего пользования будут выполнены по индивидуальному дизайн-проекту из современных материалов, качественные современные системы отопления, вентиляции и охранно-пожарной сигнализации, централизованные водоснабжение, канализация, собственная бойлерная для бесперерывной подачи тепла и воды. Инфраструктура: Концепция жилого комплекса подразумевает создание приватного дворового пространства, спроектированного с точки зрения безопасности, красоты и удобства в использовании всеми жителями: - игровые площадки для детей всех возрастов, - баскетбольная площадка, - зеленый сквер с прогулочными аллеями, - воркаут-площадка, - наземная парковка для автомобилей на 1210 машино-мест, - 2 муниципальных детских сада на 480 мест, - школа на 1224 места, - детская и взрослая поликлиники. В ближайшем окружении расположены объекты социально-бытовой, коммерческой и досуговой инфраструктуры: - детский сад 293; - гимназия 93, многопрофильная школа 181, -школа 111; - городские поликлиники и больницы; - торговые центры и гипермаркеты (Мега, Горки Парк и др.); - парк "Горкинско-Ометьевский лес". Дата начала передачи ключей 2 кв. 2023 года. Звоните прямо сейчас! Наши менеджеры в отделе продаж проконсультируют Вас по любому вопросу. Варианты оплаты: -сотрудничаем с ведущими банками - наличный расчет Помощь при оформлении ипотеки. Полное юридическое сопровождение. БЕСПЛАТНО!














