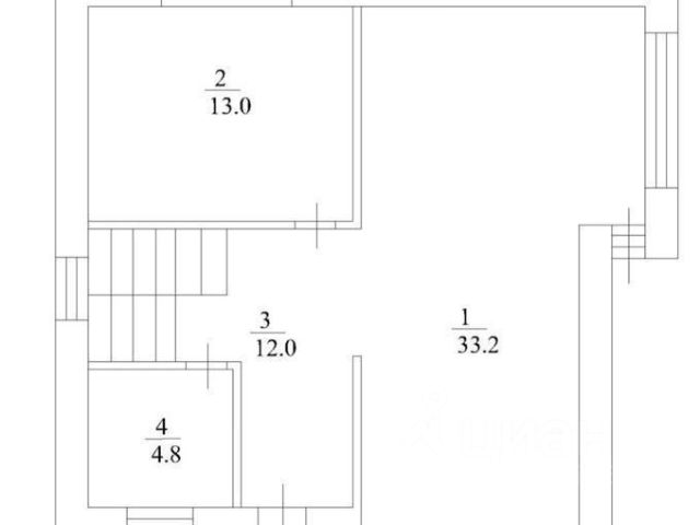
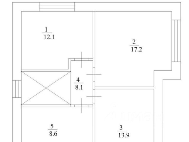
Продаётся 2-х этажный монолитный коттедж на улице Заовражная,11 в пос. Кощаково Пестречинского района Республики Татарстан! Площадь дома 117 кв.м. на ровном участке 6 соток. Дом в предчистовой отделке: есть стяжка полов, стены готовы к обоям. На 1 этаже расположены - прихожая, спальня 13.4 м2, гостиная с кухней 36,5 м2 с витражными окнами и выходом на террасу, санузел 4,2. На 2 этаже - 3 спальные комнаты 12,1 м2, 12.2 м2, 12,7 м2, холл 17,3, санузел 4,8. Есть все коммуникации: - вода централизованная, - отопление газовое, - электричество, - канализация - выгребная яма. Асфальтированная дорога. Дом расположен в шаговой доступности от инфраструктурных объектов(магазины, детские сады и школы, остановки общественного транспорта). Удобные подъездные пути. Рядом: Старое Шигалеево, Новое Шигалеево, Гильдеево, Богородское, Званка ЗВОНКИ ПРИНИМАЮТСЯ ЕЖЕДНЕВНО ДО 21:00!!! Номер объекта: #1/796265/133





















































































