


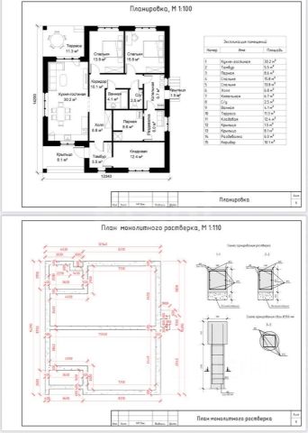
Номер объекта: 537421. Объявление выложено ЗАСТРОЙЩИКОМ СК/АН Альянс Хаус Параметры: Общая площадь земельного участка: 10,2 сотки Общая площадь коттеджа: 130 м² Все коммуникации заведены: газ, свет, вода, канализация Сдается в качественной предчистовой отделке Система теплых полов Двухконтурный газовый котел, полная разводка электрики и отопления Планировка дома продумана до мелочей, что позволяет максимально использовать полезную площадь и соответствует всем требованиям нашего времени: Входная группа, прихожая, просторная гостиная со вторым светом, отдельная зона кухни с выходом на террасу, мастер спальня с санузлом и гардеробной, две жилые комнаты, большой санузел, котельная комната; При покупке/строительстве недвижимости от нашей Компании Вы получаете: Профессиональное юридическое сопровождение сделки! Подготовка полного пакета документов с обеих сторон. Экономия Вашего времени Оформление ипотеки по сниженной ставке от банков-партнеров, содействие в оформлении ипотеки, а так же помощь при использовании (материнский капитал, военный и другие виды сертификатов) Завершаем внутреннюю отделку домов в других поселках разных планировок и площади в этом месяце Ближайшие поселки: Боровое Матюшино, Вороновка, Петровский, Мирный, Габишево, Усады. Не откладывайте на завтра, Звоните прямо сейчас, и записывайтесь на просмотр! СК/АН Альянс Хаус Юлия Продам дом в республике Татарстан, можно за материнский капитал.

































































































