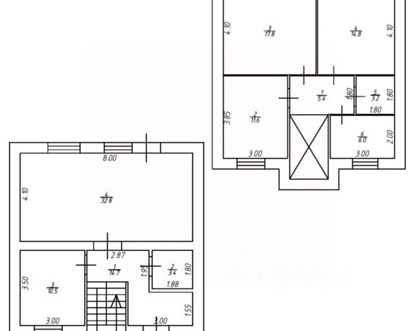
Арт. 47729426 Коттеджный поселок Кульсеитово ул Болынлык Экологически чистый район. Продаётся новый кирпичный коттедж на земельном участке 5,5 сотки. Покупка возможна за наличные, по ипотеке: семейная можно с двумя несовершенолетнми детьми 6 % it ипотека 4% , обычная 18% Дом кирпичный, капитальный с предчистовой отделкой, (механизированная штукатурка под обои и идеальная стяжка пола) удобная планировка. На дом имеется вся разрешительная документация, дом построен в соответствии со всеми строительными нормами. Общая площадь 137,6 кв.м Просторные, светлые комнаты. Потолки 3.1 м. Три спальные комнаты: 16+14+18+12 и кухня-гостиная 29 кв.м. с выходом в сад на террасу , гардеробная 4,3 кв.м., ванная комната 4,8 кв.м+ с/у 3,5 кв.м., котельная 6,2 кв.м. Дом построен и отделан из качественных материалов. Электричество, газ, вода , канализация подключены. Облицовка Алексеевская керамика, утеплитель базальт 20 см., забутовка блок 2HF. Окна Rehau 5-камерный профиль. Отопление, теплые полы., двухконтурный газовый котел. Свайно ленточный фундамент. Крыша металлочерепица. Ровный участок правильной формы. Рядом: Остановка, садик, магазины, лес, поселковый клуб, поселки: Киндери Высокая гора Дербышки Чепчуги Ипотека, материнский капитал, жилищный сертификат, военная ипотека рассматриваются. Принимаем в оплату вторичное жильё. Рассмотрим варианты обмена..
















































































