


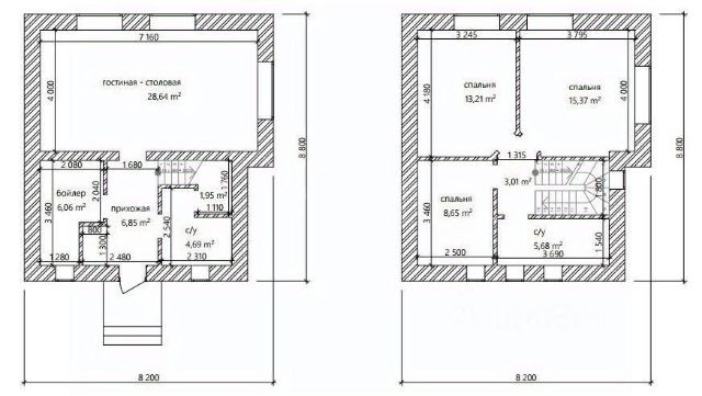
Свой дом, но рядом с городом рядом! Одобрение семейной и IT ипотеки с государственной поддержкой по низким ставкам госпрограмм СберБанк, Дом.РФ от 6% Сельхоз ипотека 3% Комбо ипотека до 15 млн по средневзвешенной ставке. Платеж при кредите 6 млн по семейной ипотеке составит 35000 рублей Время пришло! Предлагаем вам дом, который станет вашим убежищем от городской суеты. Дом с черновой отделкой в живописном поселке Малые Кабаны, всего 15 минут от Казани и 5 минут от аэропорта! Этот дом настоящий оазис для тех, кто ценит качество и комфорт! Фундамент свайно-ростверковый, бетон М300 это надежность и долговечность. Стены из кирпича 2.1 НФ и утепление 150 мм каменной ватой обеспечат вам тепло зимой и прохладу летом. А крыша с мягкой кровлей и стропилами 50х200 это гарантии, которые дают вам уверенность в будущем. Но это ещё не всё! В этом доме есть огромная терраса, где можно проводить долгие вечера с семьей и друзьями. Здесь идеально устроить зону для барбекю и наслаждаться приятными моментами под открытым небом, наслаждаясь природой и свежим воздухом. Внутри 4 уютные спальни и просторная кухня-гостиная, которая станет сердцем вашего дома. Пространство, в которое вы будете влюбляться с каждым днем! Не ждите, пока кто-то вас обгонит звоните и записывайтесь на просмотр! Этот дом ждёт вас, чтобы стать местом ваших лучших воспоминаний!




























































































