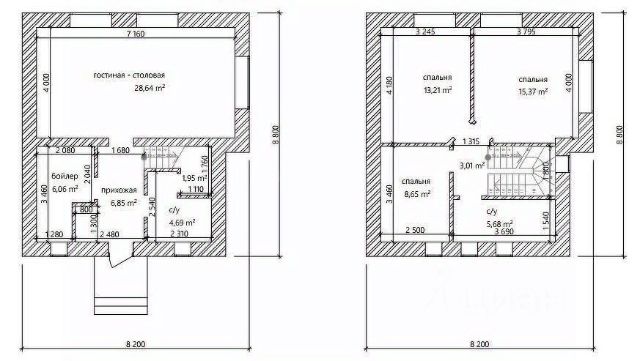
Продается двухэтажная кирпичная дача в СНТ "Крутушка-1"- в сердце целебной природы! Расположение: Не зря здесь рядом расположен знаменитый санаторий "Крутушка" местный воздух, наполненный ароматами хвойных лесов, и близость голубых озер создают уникальный микроклимат, полезный для здоровья. Транспортная доступность: Всего 20 минут на машине до города. Остановка общественного транспорта — 15 минут пешком. Автобусы курсируют каждый час. Просторный двухэтажный кирпичный дом 80 кв м-требует ремонта. Участок 6 соток - пространство для реализации идей. Коммуникации: электричество, водоснабжение, газ по границе участка. Рядом визитная карточка района — висячий Мост дяди Коли через реку Казанку. Идеальное место для прогулок и фото! Идеально для проживания или отдыха на природе без отрыва от цивилизации. P.S. Возможен торг для серьезных покупателей! Код пользователя: 181507 Номер в базе: 7806201






































































