Первичная продажа



13 акций
С отделкой
Онлайн-бронирование
сдача ГК: 1 кв. 2028 года
Северный Вокзал
29 минут на транспорте
6 005 664 ₽
-10%6 672 960 ₽
171 590 ₽/м²
Прямая продажа от застройщика!
Корпус 1.1 сдан!
Жилой Комплекс комфорт-класса.
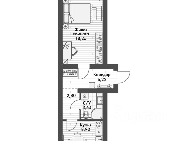
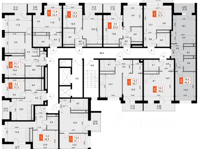
Продаётся 1-к квартира номер 44 общей площадью 35 кв.м. на 3-м этаже 6 этажного здания. Предчистовая отделка. Цена с учётом скидки.
Особенности квартиры:
- Линейная планировка - максимальная функциональность и удобство.
- Лоджия - уютное место для отдыха и тишины.
Квартира с предчистовой отделкой. Вам не придется заниматься черновыми и трудоёмкими работы, а чистовую отделку и дизайн - сделайте на свой вкус.
Информация о комплексе:
"Форест" - жилой комплекс комфорт-класса, созданный для тех, кто ищет гармонию с природой, не отказываясь от городского ритма.
Расположенный в окружении леса и реки, он воплощает мечту о загородной жизни со всеми удобствами города. Здесь можно проживать самые тёплые моменты с близкими, дышать свежим хвойным воздухом, встречать утро на собственной террасе или проводить вечера с друзьями под открытым небом.
Благоустроенная территория, прогулочные дорожки и зоны отдыха создают атмосферу уюта и гармонии. Поблизости - лес и Волга, куда можно выбраться на прогулку в любое время, не дожидаясь выходных. Благодаря вечнозелёным растениям и продуманному озеленению, дворы остаются зелёными круглый год.
Транспортная доступность:
- 4 мин. пушком до автобусной остановки
- 5 мин. на машине до школы
Внутренняя инфраструктура:
Продуманное пространство для жизни, отдыха и развития.
На территории комплекса работает собственный детский сад - современное и безопасное пространство, где дети всегда рядом с родителями. Во дворе установлены игровые комплексы для активных прогулок и развития малышей на свежем воздухе.
Жителям доступны кафе и магазины, площадки для прогулок с питомцами, зоны для пикников и барбекю. Для любителей активного образа жизни предусмотрены велодорожки, воркаут-зоны и тропы для хайкинга, а в шаговой доступности находятся планетарий и глэмпинг.
Просторный двор без машин и закрытая территория с системой контроля доступа обеспечивают высокий уровень безопасности и приватности. Здесь можно по-настоящему расслабиться и чувствовать себя дома - в окружении природы, комфорта и заботы о каждом дне.





















































































































