


147 126 ₽/м²
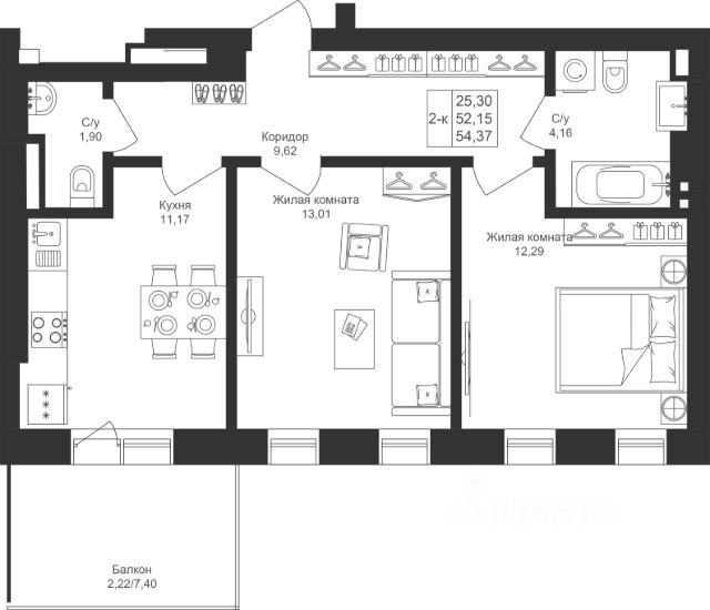
Продаётся 2-комн. квартира площадью 59,1 кв.м на 4 этаже 22 этажного дома (Корпус 5.2, Секция 2) проекта ПИК Матюшино парк. Светлый просторный подъезд на уровне земли, функциональная планировка, большие окна, предчистовая отделка. "Матюшино парк" - проект ПИК в Приволжском районе Казани. Квартал отличается удобным расположением. До центра города можно добраться всего за 20 минут на автомобиле или на электричке от станции "Южный парк". Проект находится в экологически чистом окружении. В пешей доступности лесопарк - Девликеевский лес, который идеально подходит для неспешных прогулок. Жители квартала смогут доехать до берега Волги, где можно активно провести время и насладиться живописными видами. Квартал состоит из 20 корпусов с современной архитектурой. В "Матюшино парке" будет всё необходимое для комфортной жизни. На первых этажах разместятся магазины, кафе и полезные сервисы, а во дворе появится зелёный парк и общественное пространство для отдыха и занятий спортом. В проекте запланированы современные детские сады, школа и поликлиника. Артикул 1046221












































































































































