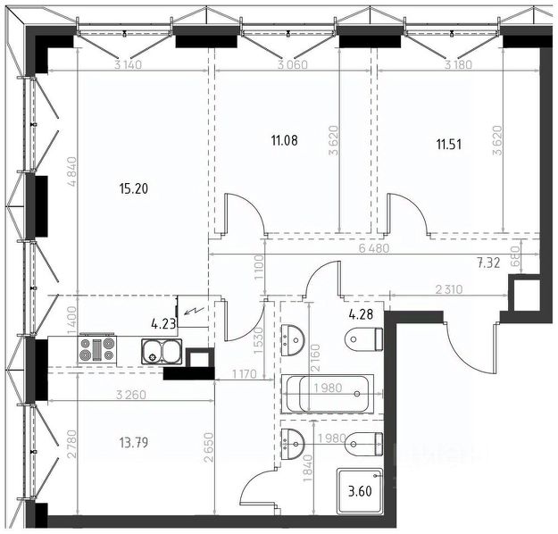
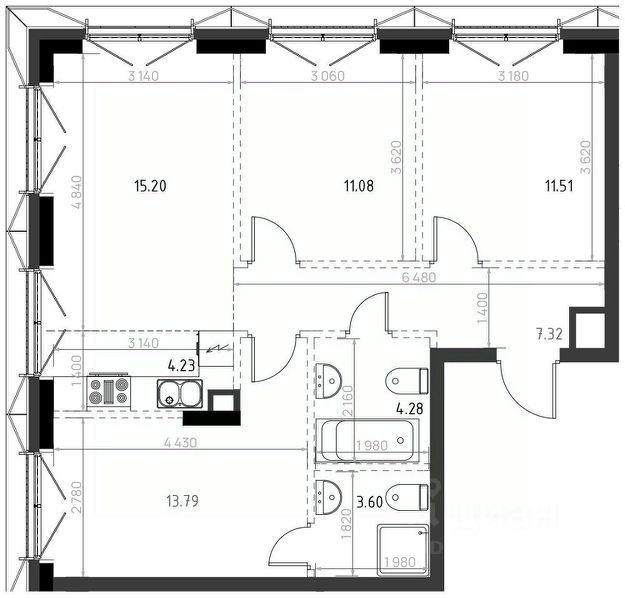
Самая лучшая видовая квартира с террасой в центре Казани!!! В продаже суперэлитная 3 комнатная квартира премиум класса в Жилом Комплексе ROYAL RESIDENCE на Волкова 12. Квартира расположена на 8 этаже 8- ми этажного кирпичного дома. Продуманная планировка ,, бабочка,,.;.Общая площадь квартиры 88 кв.м. плюс большой балкон и огромная терраса ( 40 кв.м.) откуда открывается прекрасный вид на центр Казани и до Верхнего Услона. Жилая площадь 51 кв.м..Комнаты : 11кв.м. ; 18 кв.м. ; 14 кв.м. и 7 кв.м. все изолированные. Из одной из комнат выход на огромную террасу с великолепным панорамным видом на центр города.. А из кухни, расположенной на противоположной стороне выход на длинный застекленный балкон с видом на двор и детскую площадку. 2 сан/ узла. Удобная прихожая. Качественная предчистовая отделка, стены гипсовая штукатурка, полы выравнены.Входная железная дверь.
Дом монолитного каркаса с заполнением из красного полнотелого кирпича, облицовка фасада- итальянский керамогранит, фасадные панели из нержавеющей стали и алюминия, дизайнерская отделка зон общего пользования, современная система видеонаблюдения и пожарной сигнализации, круглосуточное 100% видеонаблюдение, финские бесшумные скоростные лифты Kone, поднимающиеся с нижнего уровня парковки, 4 уровня подземной парковки!!! Закрытая территория с видеонаблюдением, круглосуточное 100% покрытие всей территории комплекса.В холле жилого комплекса предусмотрено уютное пространство для ожидания, а также зона Reception. Круглосуточная консьерж-служба поможет в решении бытовых вопросов.Территория внутреннего двора и детская площадка расположены на стилобате, доступ на которую только для жильцов комплекса. Продумано и сделано все для комфортной и безопасной жизни.
Жилой Комплекс ROYAL RESIDENCE расположен в самом сердце Казани на пересечении улиц Тихомирнова и Волкова. Прекрасно развита инфраструктура:, престижные школы 18, гимназия 3, лицей 5, физико-математический лицей 131, детские сады, а также все ведущие ВУЗы г. Казани. Магазины, торговые центры, аптеки, кафе, рестораны .Отличная транспортная развязка. Остановки общественного транспорта в паре минут прогулочного шага. В 5 минутах ходьбы станции метро Суконная слобода и Площадь Тукая. Рядом улицы Бутлерова, Достоевского, Вишневского, Пушкина, Муштари.
В продаже есть машиноместа на парковке.