


899 973 ₽/м²
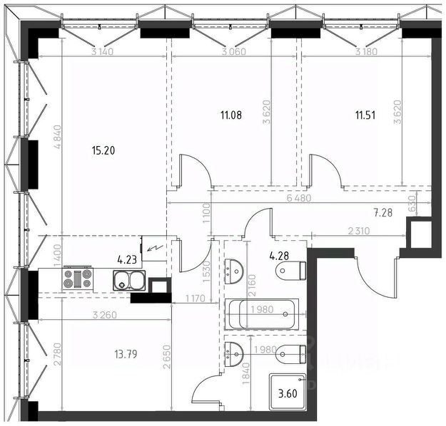
Продается 2-комнатная квартира, 9 этаж, 182.49 м², в 5 минутах от метро "Суконная слобода". Резиденция Баркли Дан — премиальный жилой комплекс в историческом центре Казани. Архитектура разработана в стиле неоклассики и ар-деко: панорамные окна увеличенного размера, высокие потолки (3.2-4.0 м), просторные холлы и гранд-лобби, созданное по индивидуальному проекту. Внутренний двор — приватное пространство, выполненное московским бюро "Утро": ландшафтный дизайн, зоны отдыха, современная детская площадка, спортивные зоны. Жилой комплекс окружён развитой инфраструктурой: рядом театр Камала, озеро Кабан, IT-парк, гимназии 5 и 27, детский сад "Звездочка", парки и объекты культуры. До метро "Суконная слобода" — 5 минут пешком. Корпус: К3. Срок сдачи — II квартал 2028 года. Доступны все программы ипотек, льготные ставки, субсидирование. Премиальный уровень комфорта, сервис и архитектуры — выбор для тех, кто ценит качество жизни.























































































































