


151 000 ₽/м²
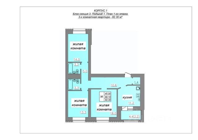
ГОРОД-ПАРК 'ЗЕЛЁНАЯ ДОЛИНА' строится в экологичном пригороде Казани - всего в 15 минутах езды от города по обновленному Горьковскому шоссе. Это полноценный город с живописным окружением, свежим воздухом и всей необходимой инфраструктурой: - комплекс комфорт-класса из 17 домов со своим детсадом, торговым центром, фитнес-центром с бассейном, spa, банным комплексом, - огромный парк 3,5 га с озером, барбекю-зоной, спортивными кортами, воркаутом, - частный детский сад 'Уникум Land' на 120 мест с центром развития на 100 мест с логоритмикой, нейрогимнастикой на сиббордах, - 2 лицея в шаговой доступности, - фреш-кафе с открытой летней террасой, - 'закрытые дворы' с игровыми и спортивными комплексами, видеонаблюдением и ландшафтным дизайном, - большой выбор 1-, 2-, 3-комнатных квартир с одной и двумя спальнями, большими кухнями и гардеробными, - дома строятся из кирпича с толщиной стен в полметра (510 мм), поэтому квартиры очень тёплые, - в квартирах выполнена качественная предчистовая отделка White box или готовый ремонт, - все квартиры оснащены индивидуальным отоплением, поэтому вы сможете сами регулировать температуру в своей квартире и коммунальные платежи, - свое комьюнити с кинопоказами, фитнес-тренировками, фестивалями, - заботливая Управляющая компания на связи с жителями 24/7, - большой уличный паркинг с бесплатными местами. Кстати, сейчас на покупку квартир в ГОРОДЕ-ПАРКЕ 'ЗЕЛЁНАЯ ДОЛИНА' действует уникальная программа рассрочки без % на 36 месяце на строящиеся и сданные дома! Вы сможете сразу заехать в свою новую квартиру. Начните новую жизнь в ритме большого города и в балансе с природой!















































































































































