От года, комм. платежи не включены, комиссия 50%, без залога
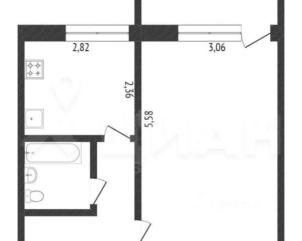
Сдаётся уютная однокомнатная квартира в кирпичном доме, расположенном по адресу: Россия, Республика Татарстан, Казань, улица Хади Такташа, 89. Общая площадь квартиры — 30 кв. м, она находится на 5 этаже 5-этажного дома. Высота потолков — 2.7 метра. Метро "Суконная слобода" всего в 13 минутах пешком, что делает передвижение по городу удобным и быстрым. В квартире есть всё необходимое для комфортного проживания. Выполнен качественный ремонт, обстановка современная и стильная. Из мебели — удобная кровать, шкаф для одежды, стол и стулья. Также имеется кухня с необходимой техникой — плита, холодильник и стиральная машина. Санузел совмещённый, чистый и ухоженный, с новой сантехникой. Дом, в котором расположена квартира, построен в 1967 году, но находится в хорошем состоянии благодаря регулярному уходу. Кирпичное строение обеспечивает отличную звукоизоляцию и комфортный микроклимат в любое время года. Парковка во дворе, поэтому можно без проблем оставлять автомобиль рядом с домом. Район имеет развитую инфраструктуру: рядом есть школы, детские сады, клиники и магазины. Всё необходимое для жизни находится в шаговой доступности, поэтому можно сэкономить время на поездках. Для прогулок и отдыха подойдут близлежащие парки и зелёные зоны. Аренда жилья на улице Хади Такташа в городе Казань.
















































































