


149 960 ₽/м²
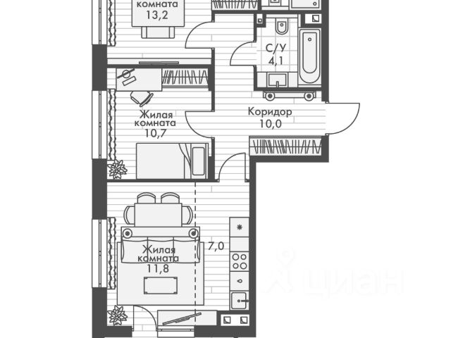
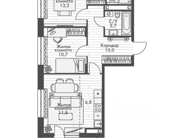
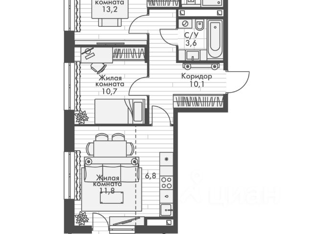
Продается 1-комнатная квартира 36 площадью 37.79 м² на 4 этаже в строящемся 20-ти этажном доме в ЖК "Хвойный". ЖК "Хвойный" расположен в городе Зеленодольске на улице Столичной. Это прекрасно развитый, обжитой микрорайон, при этом сам ЖК стоит буквально на опушке. Можно сказать, вам достается квартира в лесу. УДОБНЫЕ ПЛАНИРОВКИ: Комнаты правильной формы, функциональная прихожая и кухня, высокие потолки, места для хранения. ПРИОБРЕСТИ КВАРТИРУ МОЖНО: наличным и безналичным расчётом по 100% оплате; с использованием маткапитала; в ипотеку со ставкой от 6%. ПОДБОР КВАРТИРЫ: Наши специалисты помогут вам с выбором квартиры и оптимальной ипотечной программой абсолютно бесплатно. ПРЕИМУЩЕСТВА ПРОЕКТА: ТЕРРИТОРИЯ Выделенные зоны для спорта, активной жизни, домашних питомцев. Закрытый двор, видеонаблюдение во дворах и подъездах. Для детей несколько школ и детских садов разместилось буквально в нескольких минутах неспешной ходьбы с ребенком. Здесь же, поблизости центры развития и спортивные секции. В пешей доступности десятки торговых и сервисных точек: магазины, кафе, фитнес, аптеки, медицинские и торговые центры. Лес за окном - окружение леса и никакой промышленности по соседству.Гулять по лесным тропинкам, кататься на велосипеде или на лыжах. Игровые площадки для детей разных возрастов с безопасным покрытием. Большая парковка для жильцов. Ландшафтный дизайн территории. ДОМ Колясочные помещения в подъезде. Стационарный пост консьержа. Видеодомофоны с контролем доступа. Стильные фасады, авторские лобби и площадки. Бесшумные скоростные лифты. Энергосберегающее освещение. КВАРТИРА Эргономичные планировки с возможностью улучшения. Остекленные балконы. Высокие потолки (270 см). Квартиры в предчистовой отделке (White Box). Лучевая разводка. Высококачественная звукоизоляция. Звоните, добавляйте в избранное! Продается 1-комнатная квартира в микрорайоне Мирный в городе Зеленодольск.















































































