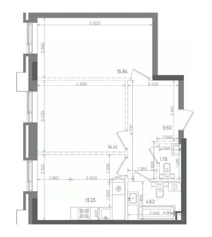
Продается 2-комн. квартира на 8-м этаже в строящемся проекте GloraX Экосити. Общая площадь лота составляет 43,43 кв. м, из которых 21,18 кв. м отведено под жилую и 10,54 кв. м под кухонную зону. Номер квартиры - 115
Преимущества квартиры в Урбан-квартале:
• Квартира с полностью чистовой отделкой.
В комнатах и коридоре:
- натяжной потолок,
- стены оклеены обоями под покраску,
- полы: ламинат, плинтусы и напольная плитки
- установлены межкомнатные двери и подоконники.
В санузлах:
- на стенах - керамогранитная плитка и/или окраска водостойкой краской
- на полу - керамогранитная плитка;
- натяжной потолок
- сантехника: ванна и экран под ванну/душевой поддон, унитаз, раковины и смесители, монтаж водопровода и канализации
- Предусмотрен расширенный пакет системы Умный Дом: бесключевой доступ в подъезд, видеодомофон с функцией Face ID, видеонаблюдение, автоматизированный сбор и передача показаний счётчиков;
- На территории Урбан-квартала предусмотрено строительство детского сада на 360 мест, школы на 1501 место, детский развивающий центр на 2000 мест.
- Рядом с с кварталом Резиденции запланировано строительство детского сада на 360 мест, школы с детским развивающим центром на 1501 место
- На первых этажах домов Урбан-квартала запроектированы коммерческие помещения - предусмотрены места для супермаркетов, бытовых услуг, кафе.
- Собственный комьюнити-центр для жителей Урбан-квартала
- Клуб Резидентов для жителей квартала Резиденции
- бульвар "Река между камней" с плейхабом для детей, амфитеатром, спортивными зонами, аллеей достижений. Всем посетителям будет доступен иммерсивный маршрут и AR-игры.
- Тайная тропа вдоль которой расположатся зоны тихого отдыха, йоги и медитаций
- 2 смотровые площадки
- Снейк-ран
- Круговой спортивный маршрут
- Специальные зоны для выгула собак
- В Урбан-квартале предусмотрено строительство 2 многоэтажных паркингов на 300 и 360 машиномест. Всем жителям проекта доступен и привычный плоскостной паркинг вокруг территории проекта с возможностью в приложении дома получить информацию о наличии парковочных мест.
- В квартале Резиденции предусмотрен подземный паркинг на 260 машиномест
GloraX Экосити — это совершенство города в первозданной природе. Наполненный возможностями квартал, в котором вы не выбираете между городом или природой, семьей или работой, отдыхом или спортом, — вы берете всё сразу.
Каждая семья, каким бы составом она ни жила, найдет для себя идеальное пространство. Планировочные решения разнообразны, также как и возможности отделки от черновой до полностью с ремонтом. Здесь запроектированы квартиры с просторной кухней-гостиной, чтобы семья могла комфортно проводить время вместе.
Квартиры сдаются с современной качественной отделкой, что позволяет после сдачи дома сразу начать жить, избежав долгих самостоятельных ремонтов. Цветовые решения и стиль отделки можно выбрать при покупке квартиры. Резиденции сдаются в черновой отделке, вы могли реализовать ваши самые смелые дизайнерские решения. Каждая резиде