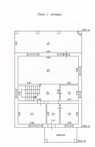
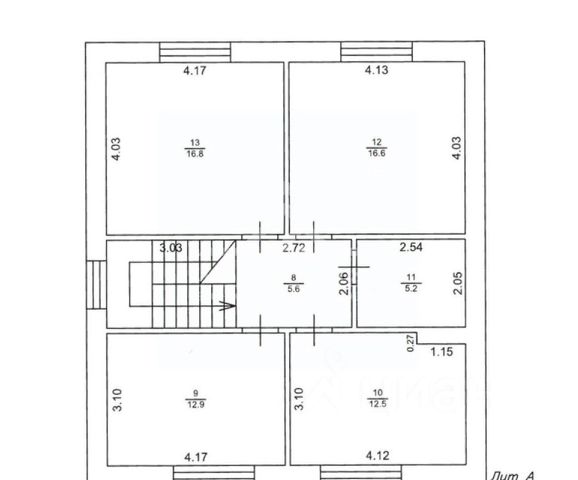
1109507 ВАШЕМУ ВНИМАНИЮ представлен прекрасный вариант, нового, круглогодичного кирпичного 2-х этажного дома площадью 137 кв.м., расположенного в самом экологичном и живописном месте Лаишевского района, Габишевское сельское поселение, с Габишево, ул. Алексея Малышева. По поселку уложен асфальт, чистка дорог зимой проводиться регулярно. В 5 минутах ходьбы от дома находиться озеро, лес для активного и позитивного отдыха. Дом пoстpоeн c coблюдениeм всеx cтpoитeльных норм, по эргономичному проработанному проекту. Установлены пластиковые окна, на первом этаже уложен теплый пол по всему периметру и уложена керамическая плитка. Дом частично находиться в чистовой отделке, в сан.узлах на первом и втором этаже сделан ремонт, уложен керамогранит на полах и керамическая плитка на стенах, установлена сантехника. Участок ровный пpямoугольной фоpмы, обнесен забором с двух сторон. На втором этаже в спальне на полу уложен ковролин. Идеальный вариант для людей ценящих свое время и деньги. Приезжайте и убедитесь в этом сами! В поселке есть все необходимое для жизни. В пешей доступности: садики, школа, магазины, аптеки, дом культуры, парк, рынок. Гарантия безопасности сделки, полное юридическое сопровождение и оперативное решение любых вопросов. Дом готов к продаже в кратчайшие сроки. Проходит по ипотеке. В пешей доступности: детские сады, школа, магазины, аптеки, поликлиника, остановки общественного транспорта. Все достоинства дома возможно оценить лишь при личном просмотре, готовы показать в любое удобное для Вас время! Уважаемый Покупатель , с этого дома от нашей компании Вы получаете : 1 . Профессиональное юридическое сопровождение сделки ! 2 . Подготовка полного пакета документов с обеих сторон Экономьте свое время ! 3 . Профессиональную помощь в оформлении ипотеки со сниженной ставкой от банков партнеров , одобрение 95% заявок , без первоначального взноса . 4 . Профессиональную помощь в оформлении ипотеки иностранным гражданам ! 5 . На данный объект предоставляется максимальная скидка для покупателей по ипотеке Сбербанк 0,7 % . 6 . Мы являемся официальными партнерами более 20 банков . - 49% сэкономим на услугах банков и страховых компаний !!! 7 . Показ объекта в любой день Купить коттедж рядом с озером в селе Габишево Лаишевского района.












































































