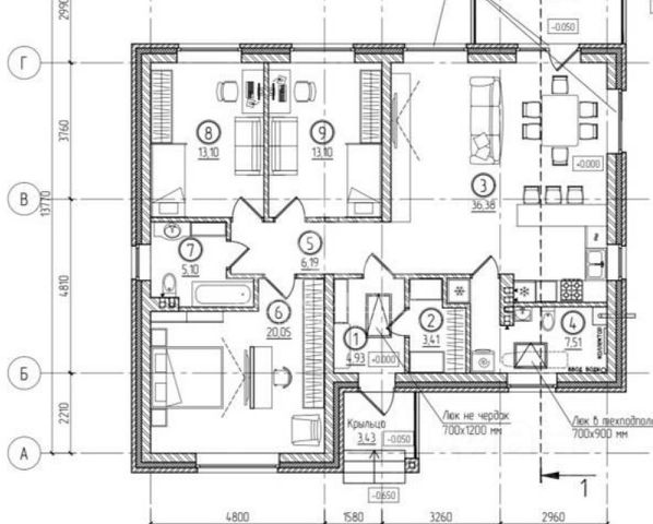
Номер объекта: 537739. Объявление выложено застройщиком СК/АН Альянс Хаус Параметры: Общая площадь земельного участка: 10 соток Общая площадь коттеджа: 135 м² Подключены все коммуникации: газ, свет, вода (скважина), канализация При проектировании, мы постарались максимально учесть все пожелания и все требования современного времени: 1 этаж: Входная группа, холл, гардеробная, просторная кухня-гостиная с выходом на террасу, 3 жилых комнаты, большой санузел, котельная комната; При покупке/строительстве недвижимости от нашей Компании Вы получаете: Профессиональное юридическое сопровождение сделки! Подготовка полного пакета документов с обеих сторон. Экономия Вашего времени. Оформление ипотеки по сниженной ставке от банков-партнеров, содействие в одобрении ипотеки, а так же помощь при использовании (материнский капитал, военный и другие виды сертификатов) Действует по многим ипотечным программам: Семейная ипотека IT ипотека Военная ипотека Сельская ипотека Завершаем внутреннюю отделку домов в других поселках разных планировок и площади в этом месяце Ближайшие поселки: Габишево, Песчаные Ковали, Вороновка, Петровский, Мирный, Усады. Не откладывайте на завтра! Звоните прямо сейчас и записывайтесь на просмотр! СК/АН Альянс Хаус Юлия
















































































